NP2F
projet précédent
180
projet suivant
  • architectes
  • index
  • news
  • à propos
  • contact
open
close

1

2

3

4

5

6

7

8

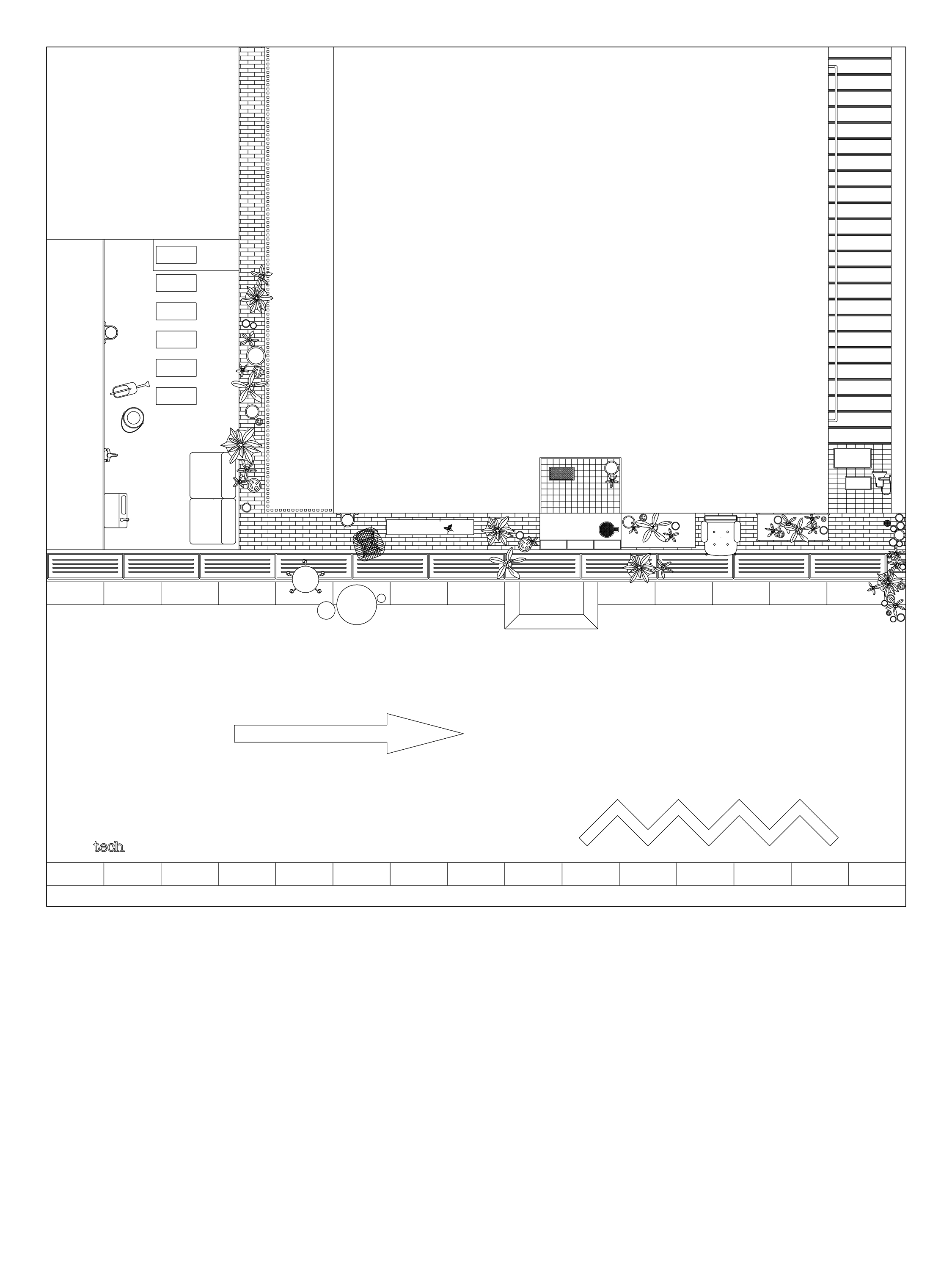
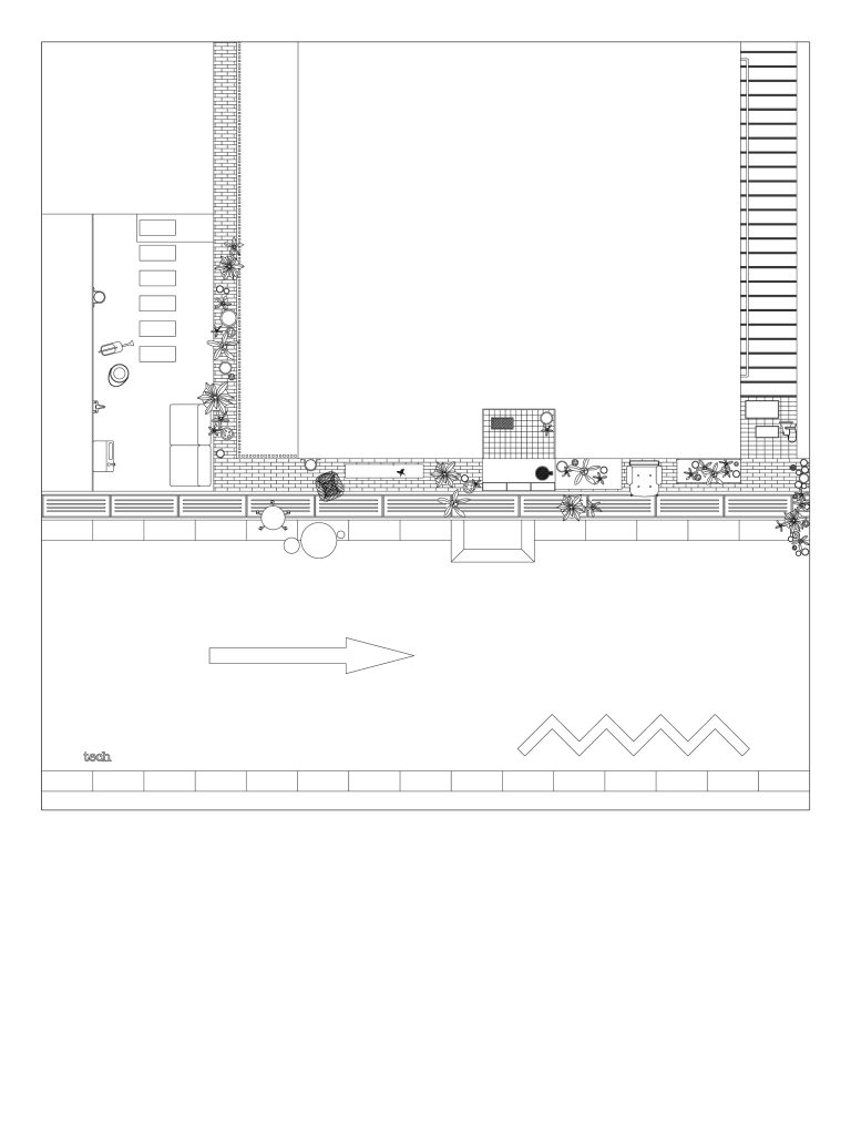
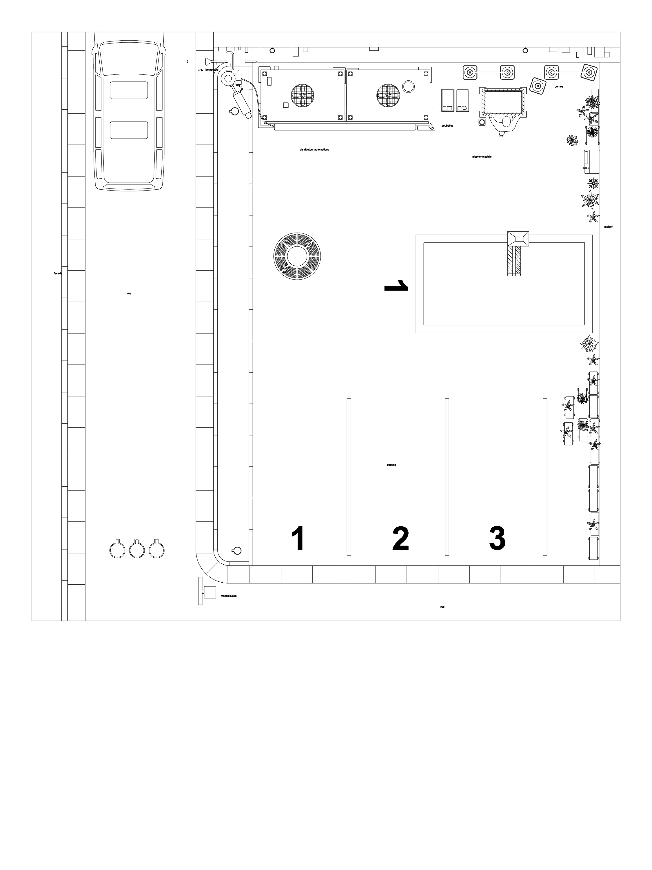
Exposition « Kenchiku Architecture »

180
infos
infos
2013, Paris (FR), Tokyo (JPN) infos
Année 2013
Lieu Paris (FR), Tokyo (JPN)
Maîtrise d’ouvrage Research for Architectural Domain (RAD), Pavillon de l’Arsenal
Mandataire NP2F
Programme Exposition-laboratoire, propositions croisées de douze agences d’architecture japonaises et françaises sur les métropoles de Paris et Tokyo
Photographe Antoine Espinasseau

Tout peut potentiellement être troublant à Tokyo pour un œil étranger, et plus particulièrement pour un œil parisien. Tout semble opposer ces deux villes, composition, patrimoine, globalité pour l’une ; hétérogénéité, mixité, détail pour l’autre. Nous n’avons pas voulu nous pencher sur les modèles conceptuels qu’évoque la ville dans sa globalité, mais sur des exemples précis, des moments urbains qui ont trouvé une résonance, parfois très éloignée, avec des phénomènes spatiaux que nous connaissons mieux et qui nous ont tout simplement touchés. Pas seulement en tant qu’architectes mais en tant qu’utilisateurs, que promeneurs. Si la ville est un bouillon magmatique, véritable incubateur de presque tous types d’usages, de pratiques et d’espaces, nous nous intéressons au principe relationnel, de proche en proche, de la ville évoluant constamment et démultipliant les contacts, les superpositions, les imbrications, les « frôlements » entre domesticité et urbanité. Les lieux qui en témoignent, ces lieux communs nous intéressent ici dans leur caractère rassemblant, ils représentent des lieux décloisonnés, peut-être plus intenses, plus « innervés ». Les 4 situations, présentées ici de façon scientifiques, voire archéologiques, sans contact directs les unes avec les-autres, sont en même temps réelles, volontairement hyperréalistes, et en même temps modifiées, assemblées ou dissemblables afin d’aboutir à la vision de frôlement entre les sphères publiques et privées, que nous en avons vues et surtout à la sensation spatiale que nous cherchons à communiquer. Une réalité augmentée et donc ultra-réelle.