NP2F
projet précédent
179
projet suivant
  • architectes
  • index
  • news
  • à propos
  • contact
open
close

1

2

3

4

5

6

7

8

9

10

11

12

13

14

Logements

179
infos
infos
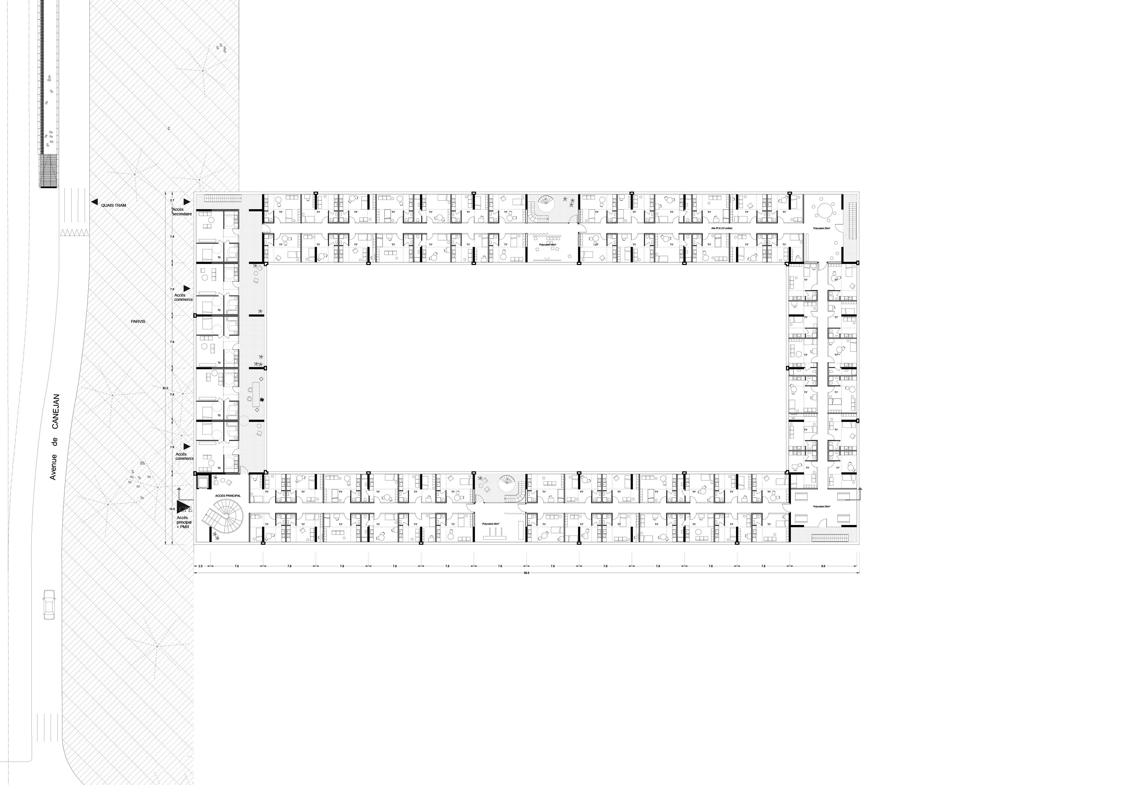
2013, Pessac infos
Année 2013
Lieu Pessac
Maîtrise d’ouvrage CUB + Aquitanis
Mandataire NP2F
Associé OFFICE
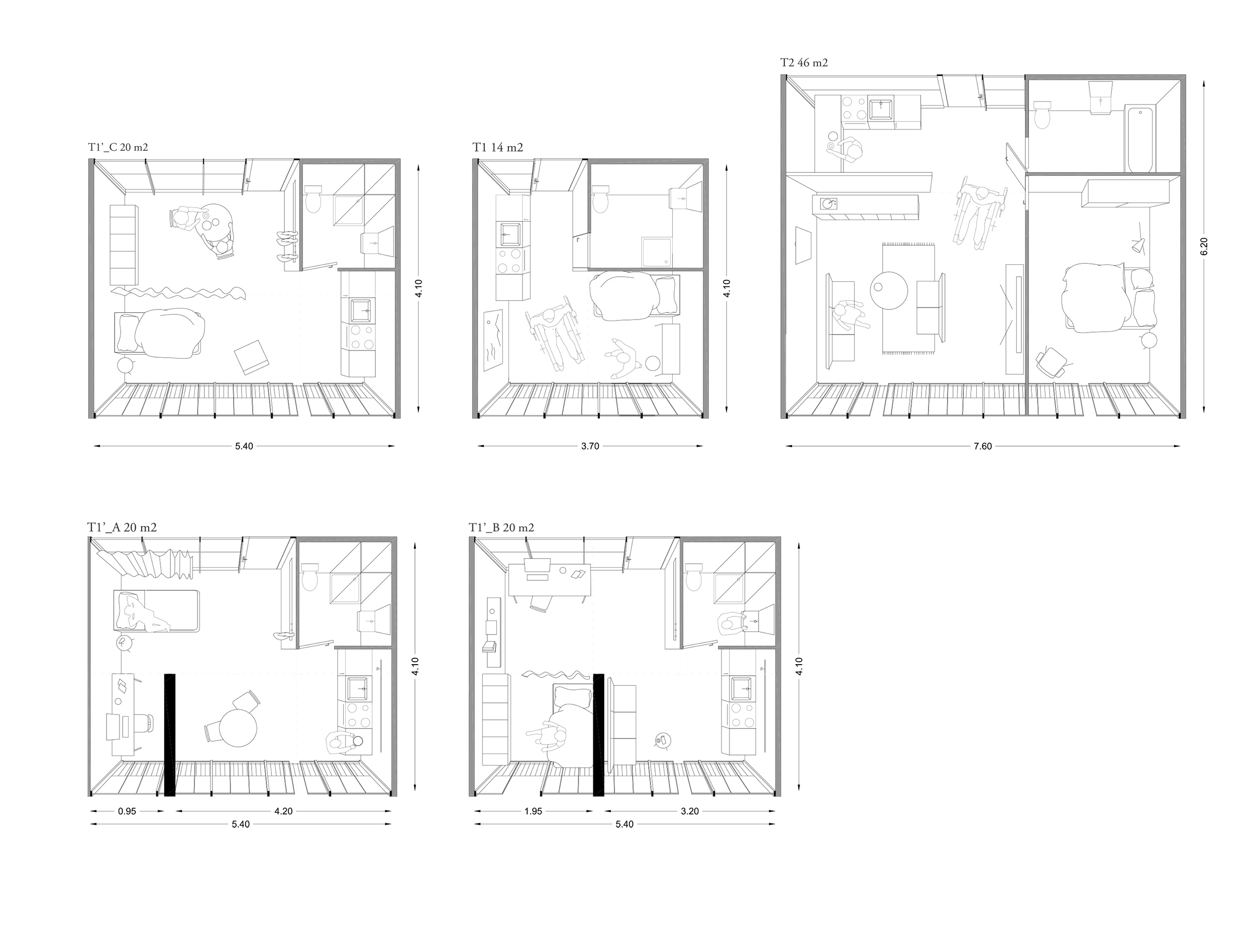
Programme Etude pour la réalisation de 135 logements étudiants, îlot Pessac Cité des Métiers
Superficie 6 340 m²
Coût 9 000 000
Mission Complète
Statut Concours