NP2F
projet précédent
175
projet suivant
  • architectes
  • index
  • news
  • à propos
  • contact
open
close

1

2

3

4

5

6

7

8

9

10

11

12

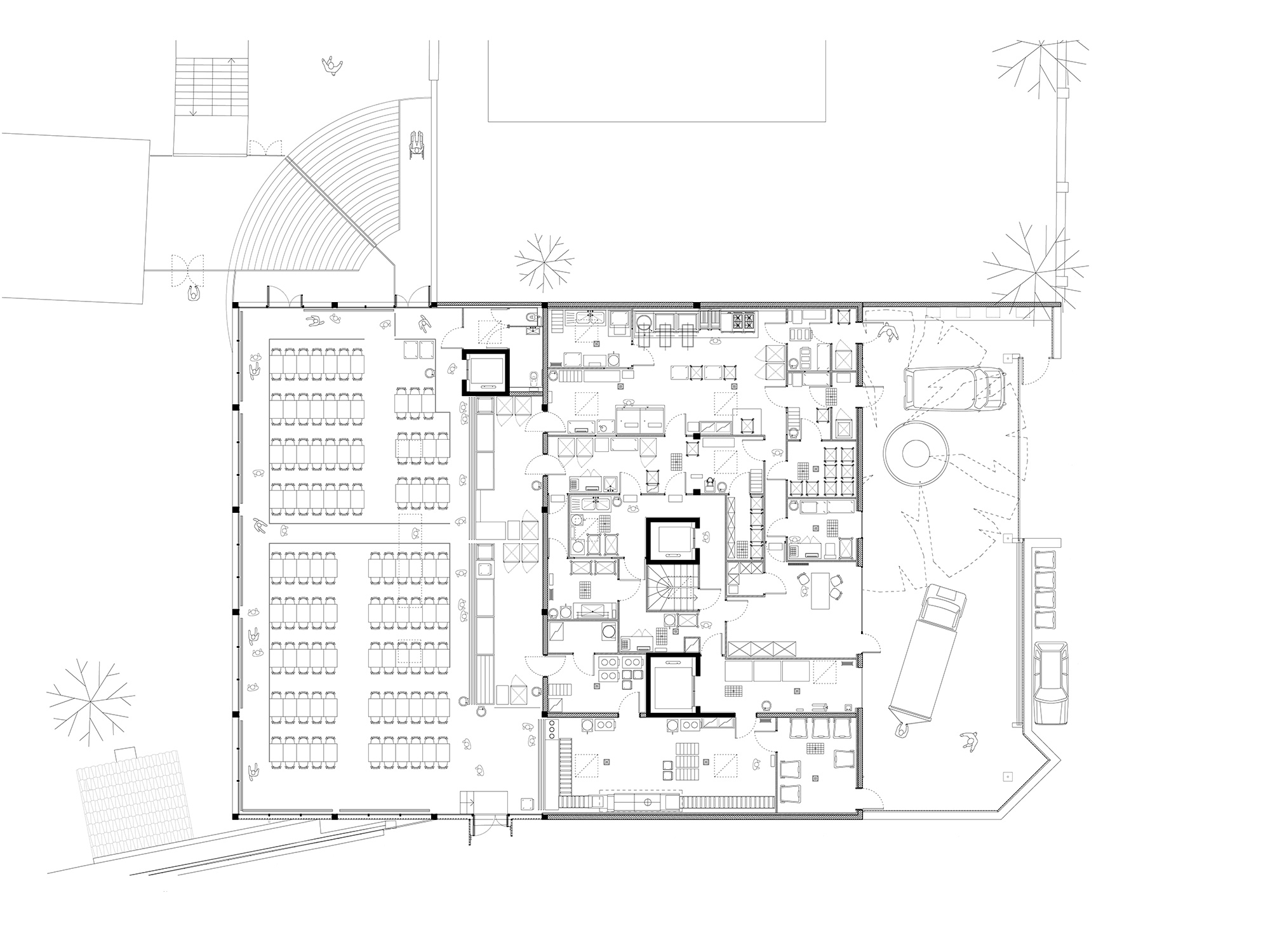
Restaurant scolaire

175
infos
infos
2013, Saint-Mandrier infos
Année 2013
Lieu Saint-Mandrier
Maîtrise d’ouvrage Ville de Saint-Mandrier
Mandataire NP2F
Avec Lamoureux et Ricciotti, VPEAS, B52
Programme Construction d'un restaurant scolaire
Superficie 800 m²
Coût 2 500 000
Mission Complète
Statut Livré 2016
Photographe Antoine Espinasseau

Le site est très marqué par le caractère vernaculaire dû à sa situation (tissu pavillonnaire environnant, climat). S’immisçant entre deux restanques, le projet est orienté vers le Nord pour ouvrir largement sur la cour un nouveau réfectoire et échapper aux chaleurs méditerranéennes. L’organisation du restaurant scolaire en plan et en coupe fait naturellement émerger trois espaces contigus différents dans la programmation, dans la gestion des contraintes techniques et constructives, dans le rapport au sol et dans l’usage. Un premier espace appelé plateforme technique s’affiche directement sur le Chemin de Aubépines. Il doit négocier un rapport de douceur vis-à-vis du voisinage et dans le même temps être un espace efficace de livraison et de travail. Une marquise en béton court le long du mur périphérique. Un deuxième espace, la cuisine, est une petite usine de production alimentaire, fonctionnelle, organisée de façon optimale, agrémentée d’ouvertures majoritairement zénithales dans les espaces de travail et de vie. Enfin la salle de restauration “dans les arbres” surplombe la cours. L’ensemble apparaît comme un rocher robuste, massif, support de gradins, de bancs, de larges escaliers, surmonté d’émergences techniques.