NP2F
projet précédent
183
projet suivant
  • architectes
  • index
  • news
  • à propos
  • contact
open
close

1

2

3

4

5

6

7

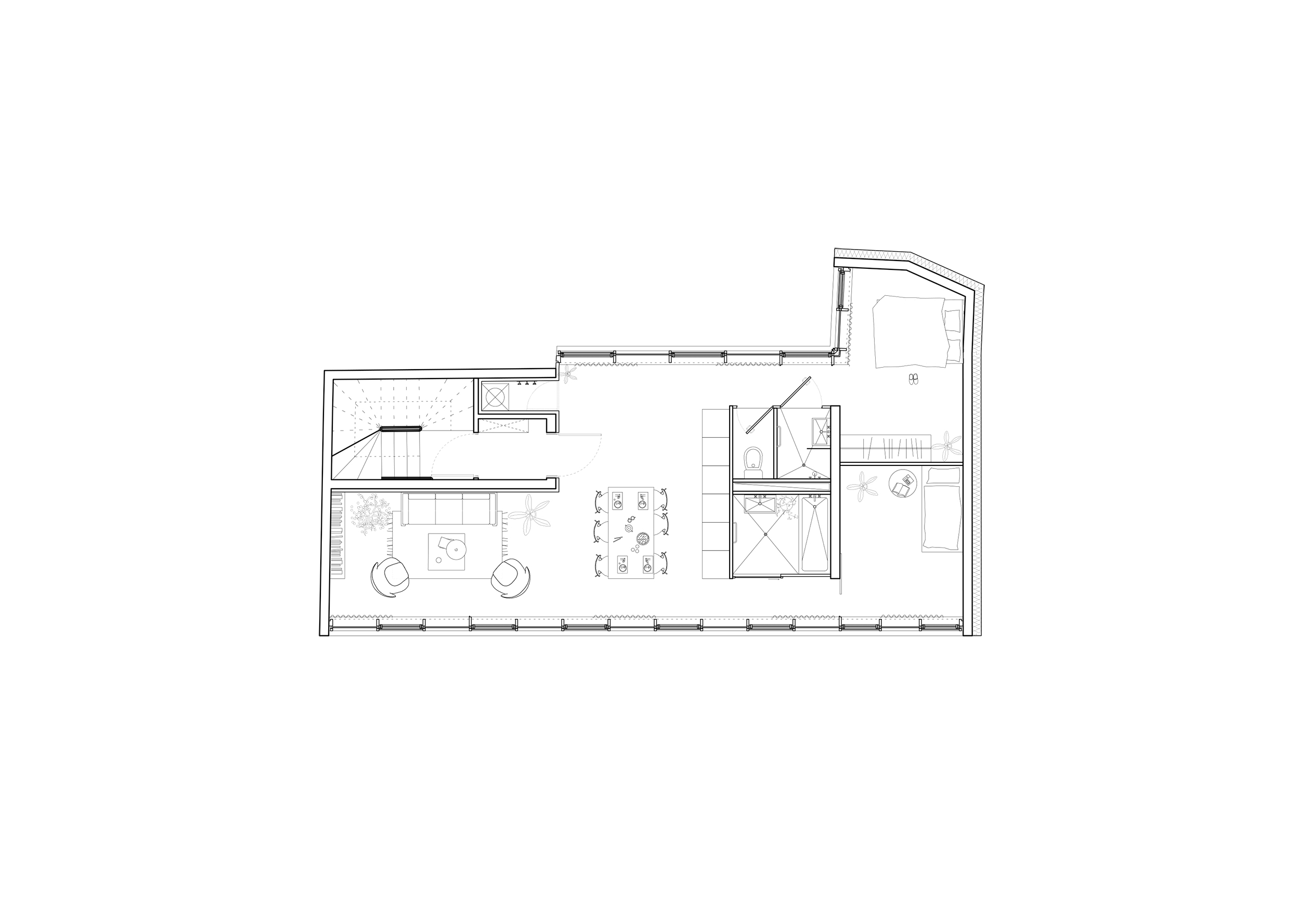
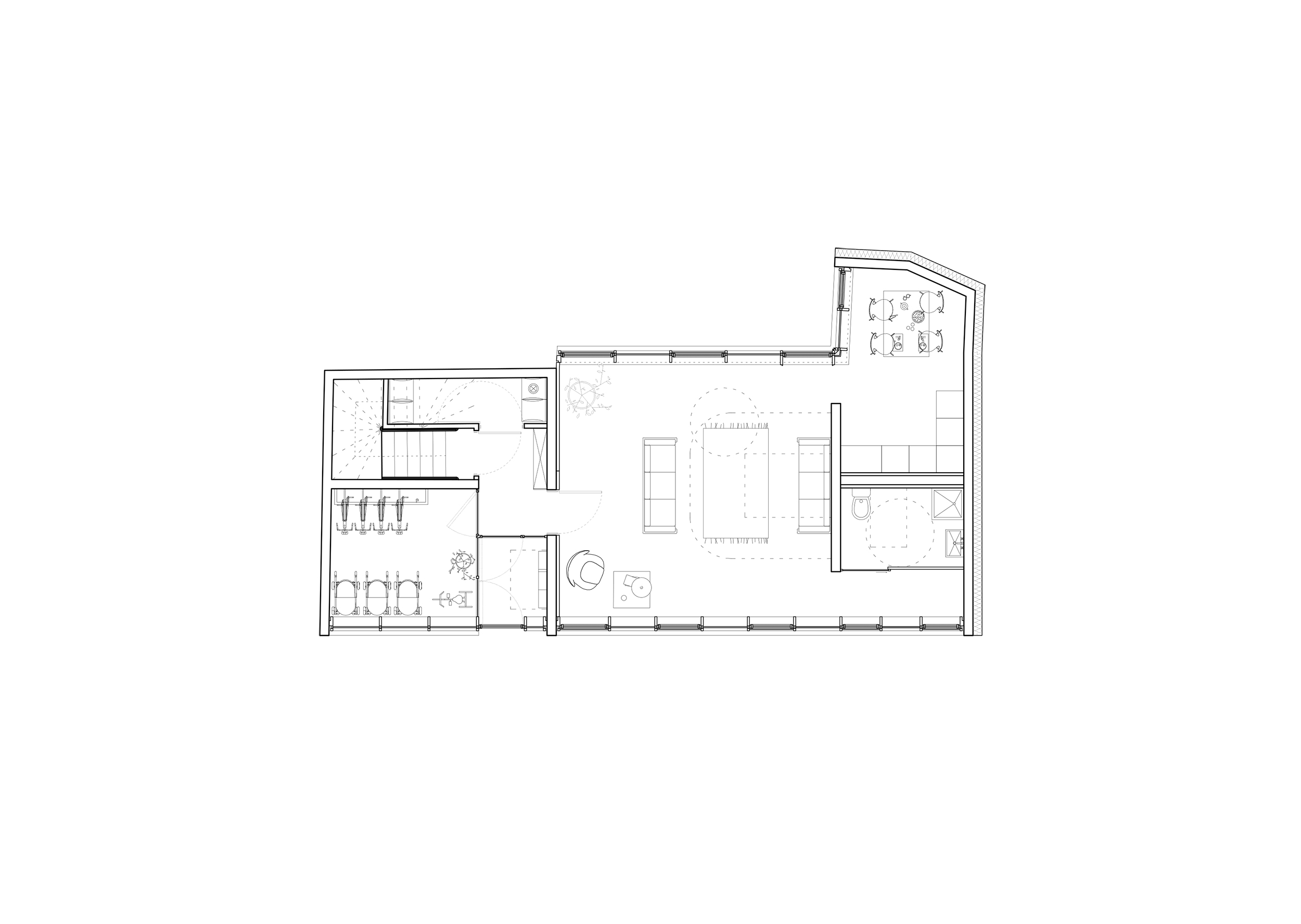
Logements, Paris

183
infos
infos
2014, Paris (FR) infos
Année 2014
Lieu Paris (FR)
Maîtrise d’ouvrage Groupe SOS
Mandataire NP2F
Avec EVP Ingénierie, VPEAS, B52
Programme Construction de 5 Logements collectifs
Superficie 550 m²
Mission Complète
Statut Arrêté