NP2F
projet précédent
191
projet suivant
  • architectes
  • index
  • news
  • à propos
  • contact
open
close

1

2

3

4

5

6

7

8

9

10

11

12

13

14

15

Logements et SoHo

191
infos
infos
2014, ZAC Chapelle International, Paris 18 infos
Année 2014
Lieu ZAC Chapelle International, Paris 18
Maîtrise d’ouvrage RIVP
Mandataire NP2F
Associé MUOTO
Avec EVP, VPEAS, Nobatek, Espace temps
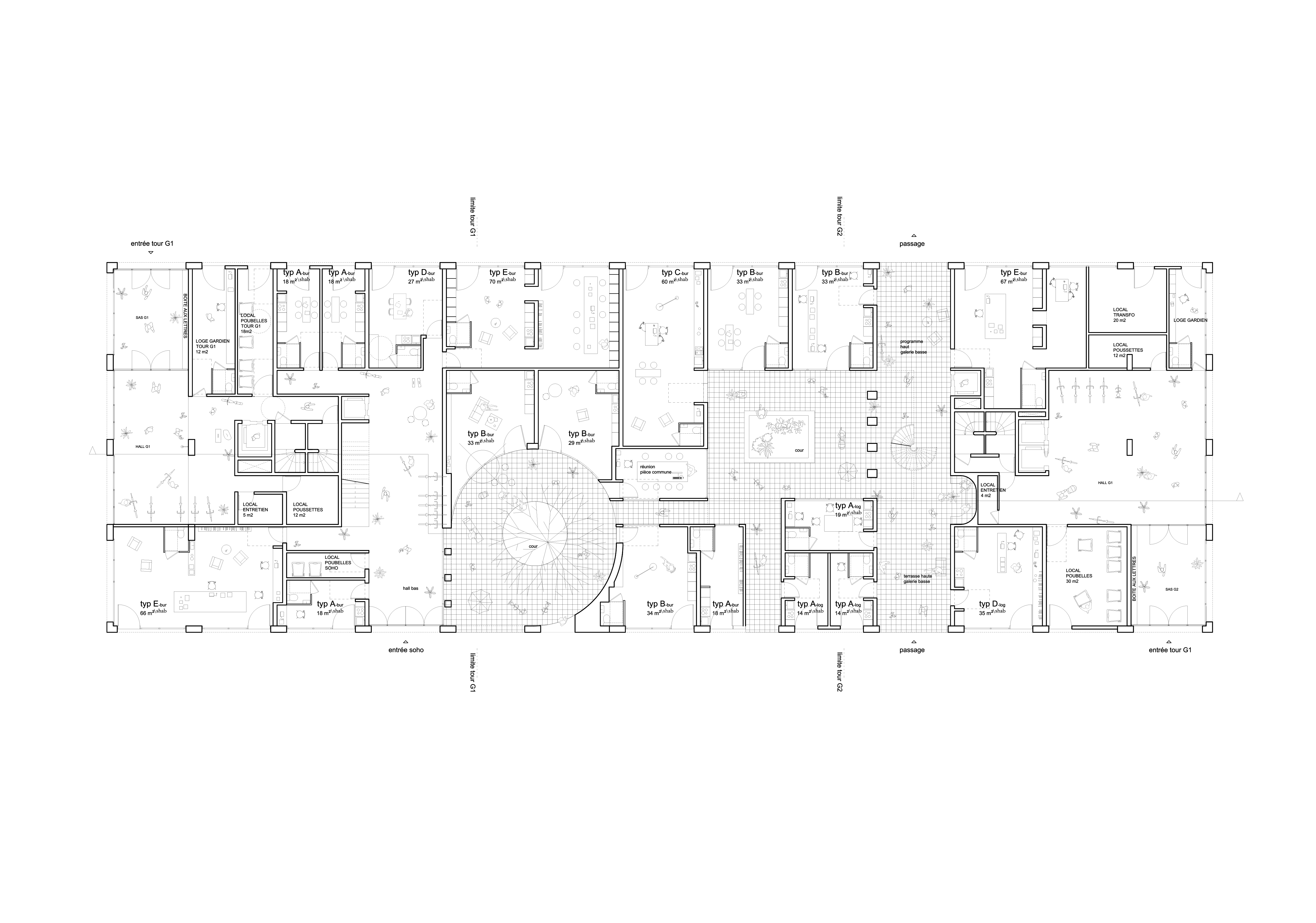
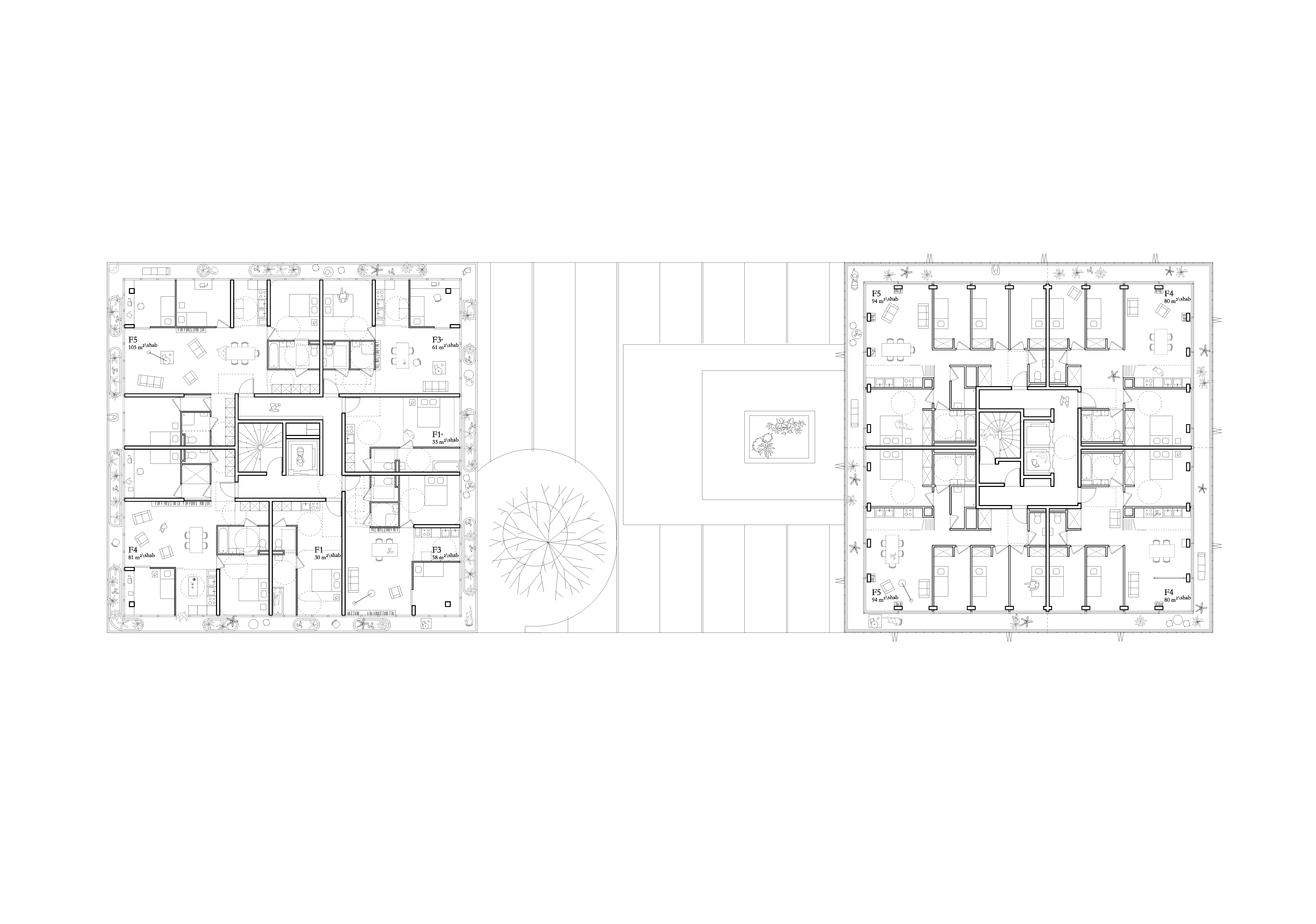
Programme Construction d'un ensemble immobilier (logements, SOHO, bureaux, commerces, équipements publics et crèche)
Superficie 8300
Coût 16 500 000
Mission Complète
Statut Concours

Le projet urbain de Chapelle International déploie des bâtiments mixtes, associant espaces de vie et espaces de travail, entrecoupées de passages publics et surmontée de tours aux identités distinctes et variées. Celles-ci semblent ainsi flotter au-dessus de cette mer de petits ateliers, pour s’adresser au lointain.
Le bâtiment G se dessine alors comme une architecture volontairement composite, comme une imbrication de modes de vie, de typologies et de programmes très différents. Eloge de la pluralité et du collage, il revendique des ajustements et des décalages, des rapports inattendus entre des vies domestiques et professionnelles. Des manières d’habiter qui auraient pu jusque-là s’ignorer, se frôlent et se nourrissent mutuellement. Le projet se développe entre des mondes à la fois proches et différents : un monde bas à l’intérieur duquel ce sont les usages qui créent la variation et un monde haut s’ouvrant de plus en plus, en même temps que les allèges montent, vers le grand paysage du bassin parisien.