NP2F
projet précédent
190
projet suivant
  • architectes
  • index
  • news
  • à propos
  • contact
open
close

1

2

3

4

5

6

7

8

9

10

11

12

13

14

15

16

17

18

19

20

21

22

23

24

Maison Kennedy

190
infos
infos
2015, Marseille infos
Année 2015
Lieu Marseille
Maîtrise d’ouvrage Privée
Mandataire NP2F
Programme Rénovation et extension d’une maison
Superficie 350 m²
Coût 450 000
Mission Complète
Statut Livré 2017
Photographe Antoine Espinasseau

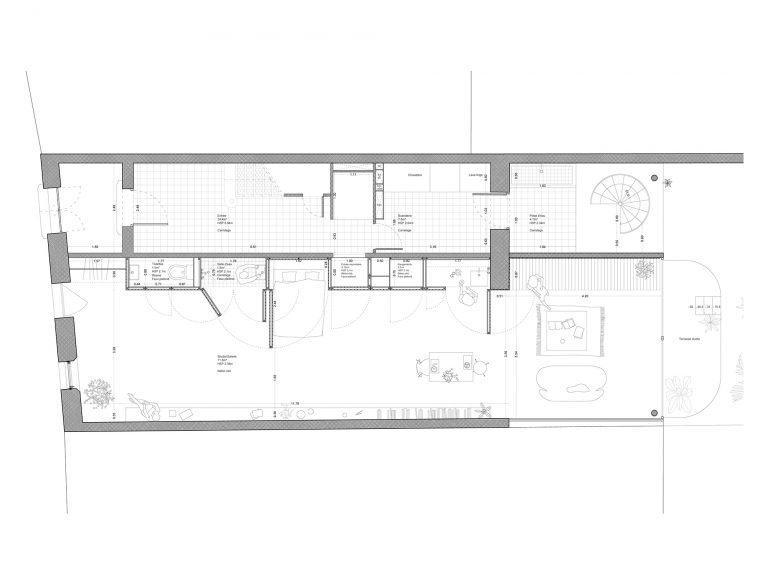
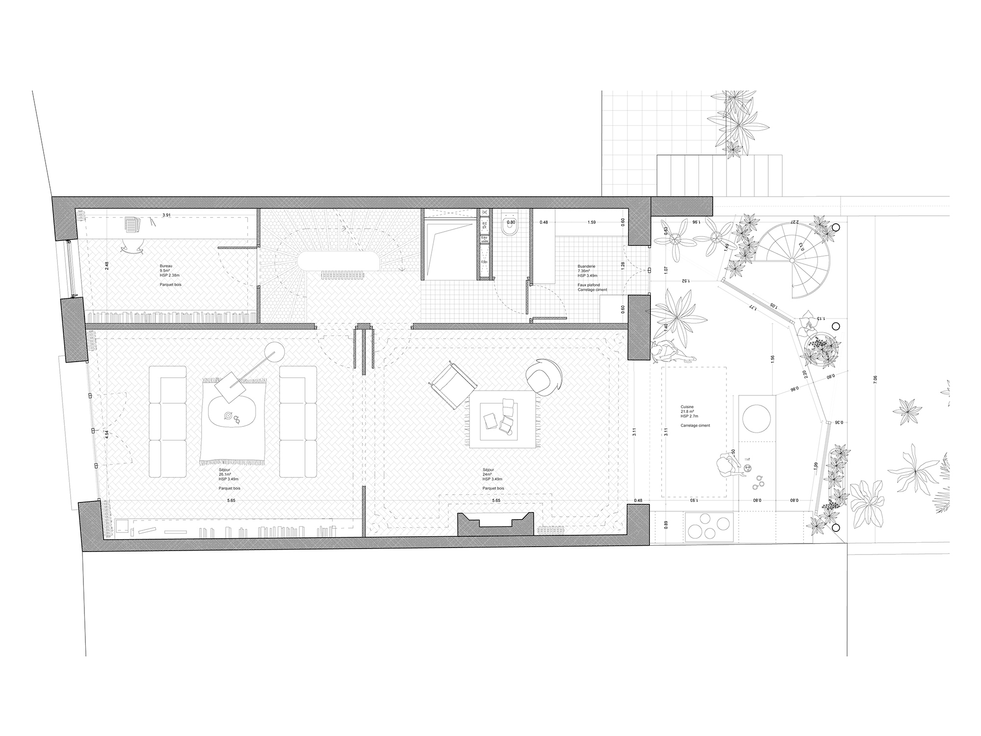
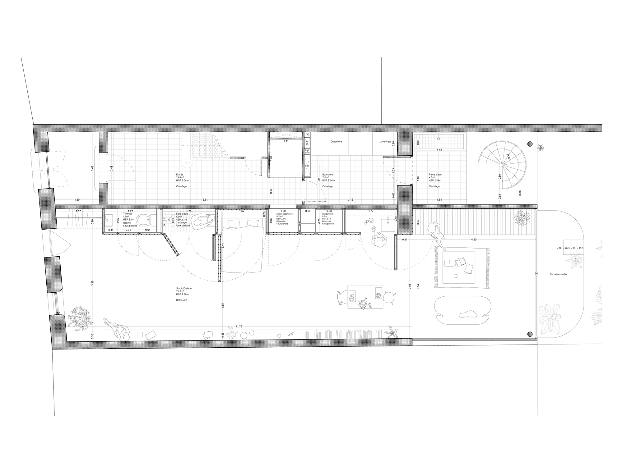
Ce projet consiste en la rénovation et l’extension d’une maison bourgeoise de quatre étages situé dans le centre-ville de Marseille. Traversante, la maison s’ouvre d’un côté sur la mer, en surplomb de la corniche, et donne de l’autre coté sur une suite de jardins privés et public planté d’arbres tropicaux et de micocoulier provençaux. Le projet modifie le cloisonnement existant pour rendre le rez-de-chaussée et le premier étage totalement ouverts. Côté jardin une extension est construite sur deux niveaux, dans le prolongement des pièces existantes, constitué de dalles de béton soutenues par des poteaux métalliques, elle est percée pour laisser passer la lumière vers le voisin, en faire rentrer d’avantage dans la nouvelle cuisine et pour accueillir un escalier extérieur qui relie plus naturellement l’étage au jardin. La façade est constituée de grands châssis, en bois exotique, qui sont tour à tour fixes ou coulissants. Des jardinières maçonnées sont disposé au R+1; les arbres et les plantes, une fois les baies ouvertes, entrent ainsi dans l’habitat et permettent de sentir concrètement ce jardin tout en regardant la mer. Profitant du climat favorable et de la configuration du bâtiment existant, la maison profite de fraicheur en été et d’un effet de serre en hiver (atrium fermé). L’intérieur et l’extérieur coproduisent cette architecture méditerranéenne.