NP2F
projet précédent
339
projet suivant
  • architectes
  • index
  • news
  • à propos
  • contact
open
close

1

2

3

4

5

6

7

8

9

10

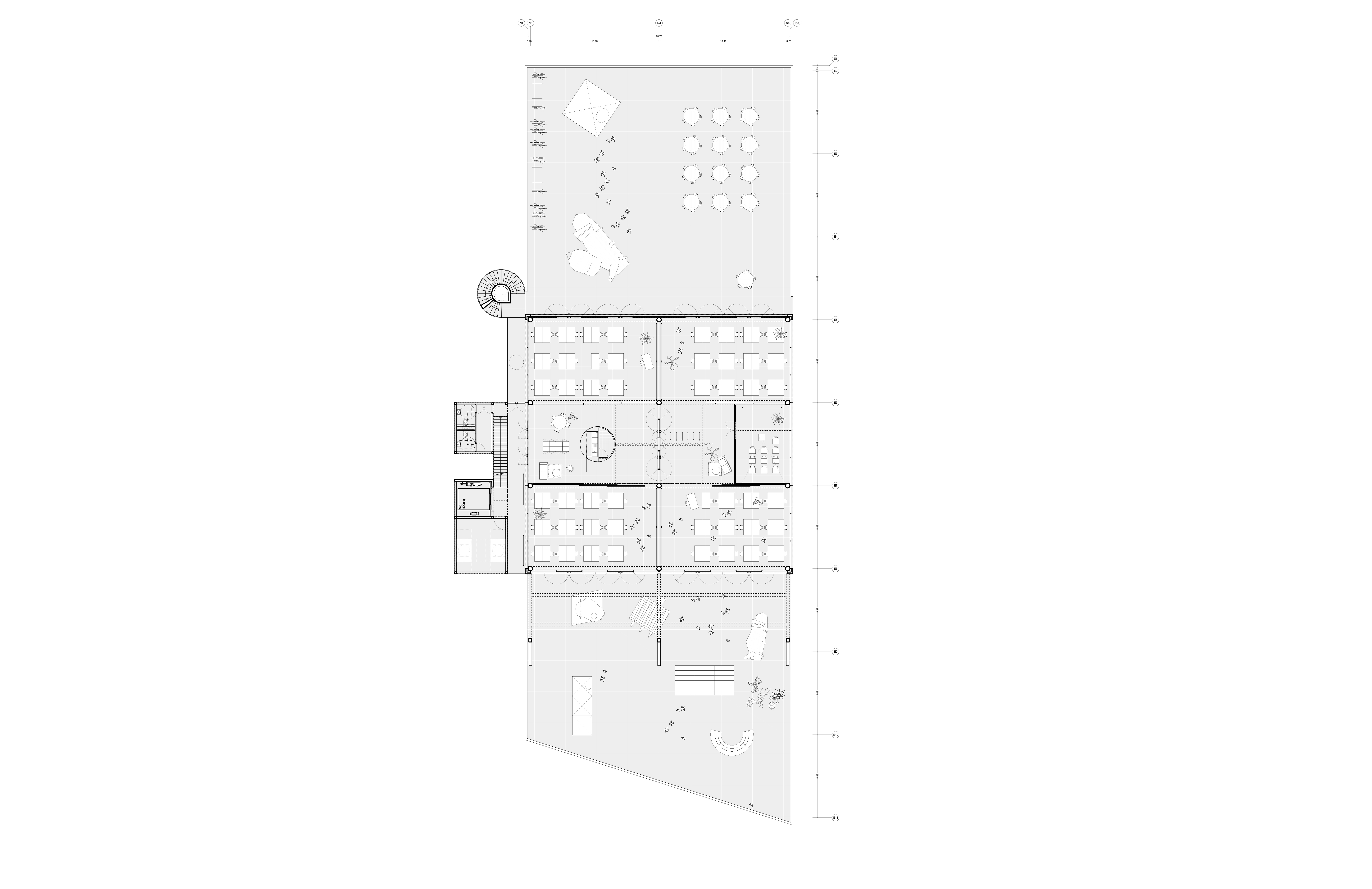
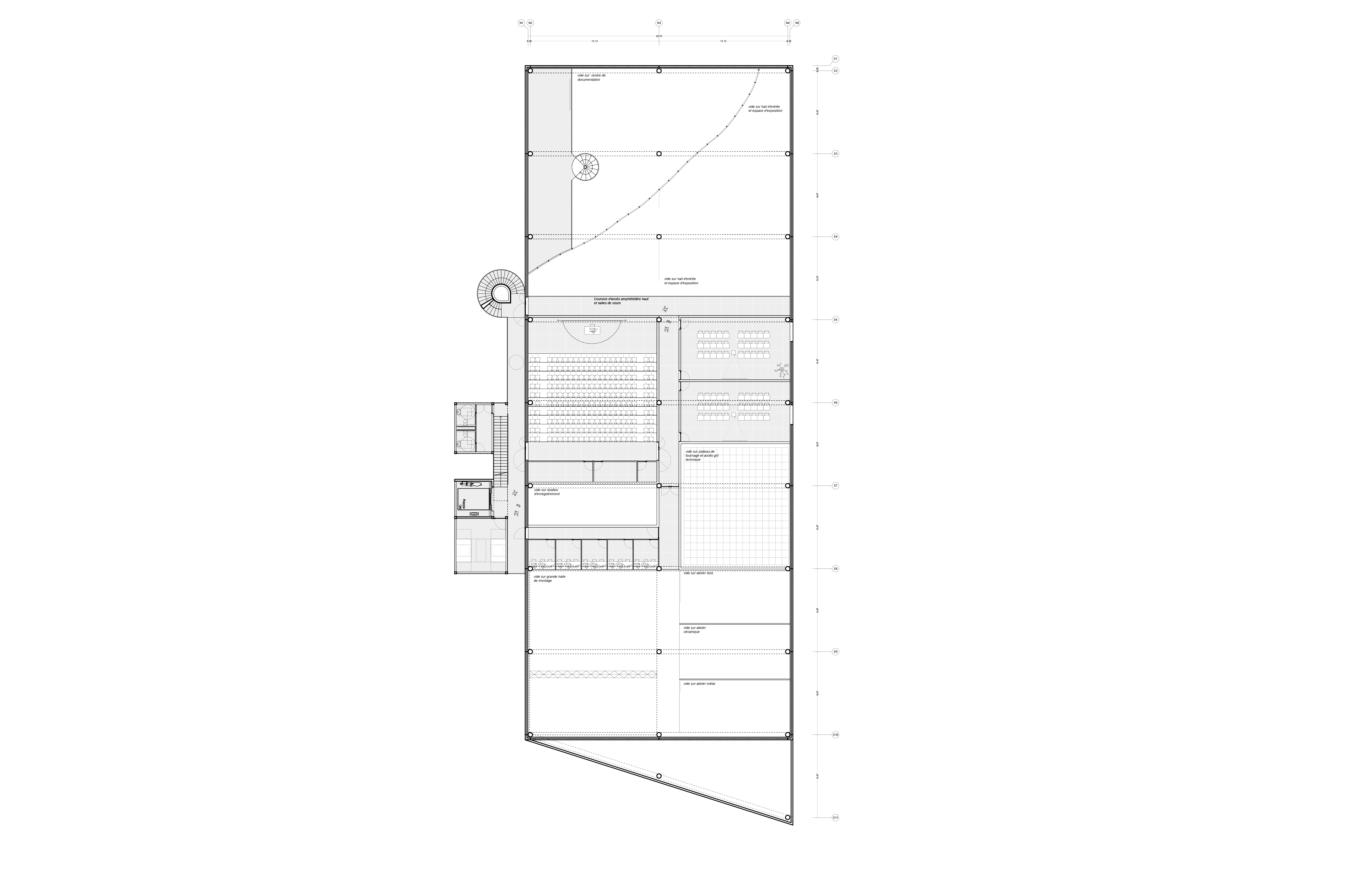
Ecole Européenne Supérieure de l’Image

339
infos
infos
2020, Poitiers infos
Année 2020
Lieu Poitiers
Maîtrise d’ouvrage Ville de Poitiers
Mandataire NP2F
Avec Bollinger Grohmann, Alto ingéniérie, VPEAS, Franck Boutté, Kahle, Alto Step
Programme Construction de l'Ecole Européenne Supérieure de l'Image
Superficie 3 600 m²
Coût 6 650 000
Mission Complète
Statut Concours