NP2F
projet précédent
331
projet suivant
  • architectes
  • index
  • news
  • à propos
  • contact
open
close

1

2

3

4

5

6

7

8

NP2F quartier olympique 032024 LD-137 copie

Logements

331
infos
infos
2019, Ile-Saint-Denis infos
Année 2019
Lieu Ile-Saint-Denis
Maîtrise d’ouvrage Groupe Pichet + Legendre
Mandataire NP2F
Avec VOLGA, TEM PARTNERS, ECOTECH, ARCADIS, BIMTECH, SCOPING
Programme Construction de 47 logements
Superficie 3 582 m²
Coût 6 050 000
Mission Complète
Statut Chantier en cours

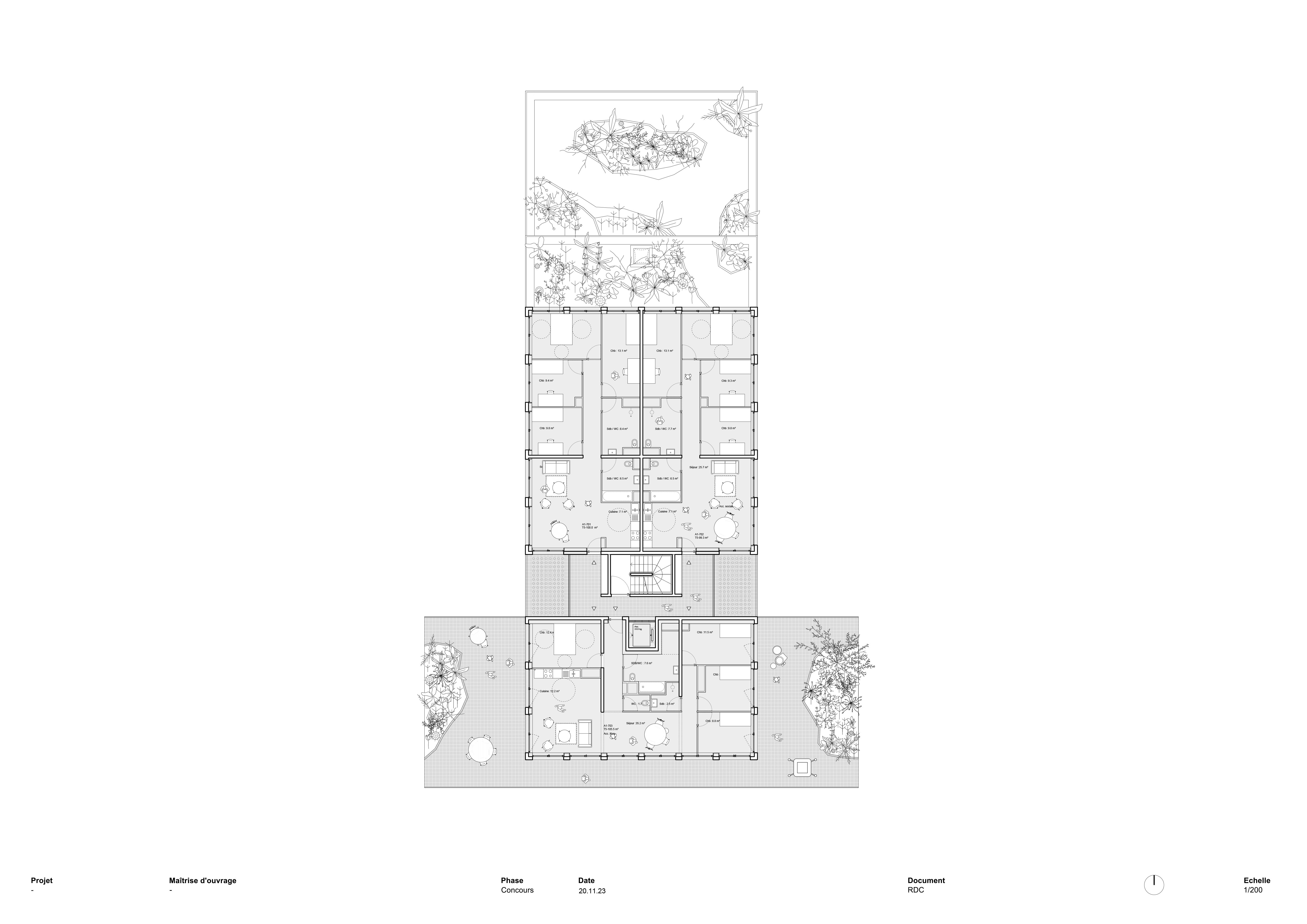
Organisation, volumétrie

Le lot central PA9 apparaît comme l’assemblage de trois corps de bâtiment reliés par deux failles accueillant les circulations verticales et les terrasses extérieures privatives. Les deux premiers corps de bâtiment, côté Quai du Châtelier et cœur d’îlot ont tous deux une hauteur de sept niveaux à partir du rez-de-chaussée ; le troisième et dernier, côté Allée du Printemps, a une hauteur de quatre niveaux à partir du rez-de-chaussée dans la continuité des lots voisins.

Traitement des façades

Matérialité et couleurs
Les façades sont caractérisées par un traitement unitaire qui apporte une harmonie à l’échelle du lot PA9. Elles se se développent avec simplicité dans la continuité des logements et de leurs usages. Ces derniers sont notamment caractérisés par un système d’allèges pleines, en réponse à la proximité des bâtiments PA8 et PA10 sur les deux façades latérales. Ces façades apparaissent comme une ossature de béton naturel clair, marquée par une trame unitaire. Les allèges, en léger retrait, sont traitées dans une même matérialité. Deux failles rythment la façade : elles accueillent les circulations verticales et les parties extérieures privatives des logements. Un mur en pavés de verre sépare ces parties privatives extérieures des paliers communs intérieurs, tout en préservant l’apport de lumière au cœur du bâtiment. Depuis le jardin, ces failles apparaissent comme une prolongation de la structure béton.

Châssis et occultations
De larges fenêtres horizontales en bois sont positionnées en partie haute des allèges. Elles se divisent en deux parties : un châssis fixe et un ouvrant à la française. Ce système se retourne sur les quatre orientations du bâtiment avec une subtile variation de trame. Côté quai du Châtelier, les allèges sont supprimées et laissent place à des porte-fenêtres à la française largement ouvertes sur les parties extérieures des appartements. Ces balcons filants lient PA9 aux bâtiments voisins PA8 et PA10 et confèrent une unité au front de Seine.
La protection solaire est assurée par un système extérieur de stores textiles verticaux qui se déroulent le long d’un rail guide intégré dans l’épaisseur de façade. Ils permettent tout à la fois une protection efficace contre la chaleur et une occultation complète. Leur couleur jaune et franche contraste avec les teintes minérales de l’ensemble du bâtiment.

Toiture
La toiture terrasse côté Allée du Printemps est aménagée et accessible aux résidents depuis les circulations verticales à R+4. L’aménagement paysager préserve l’intimité des terrasses privatives avoisinantes et dessine une terrasse demi-circulaire ouverte vers le quartier. Elle accueille en son centre une construction légère type “serre” qui intègre harmonieusement les elements techniques presents en toiture.