NP2F
projet précédent
330
projet suivant
  • architectes
  • index
  • news
  • à propos
  • contact
open
close

1

2

3

4

5

6

7

8

9

10

11

12

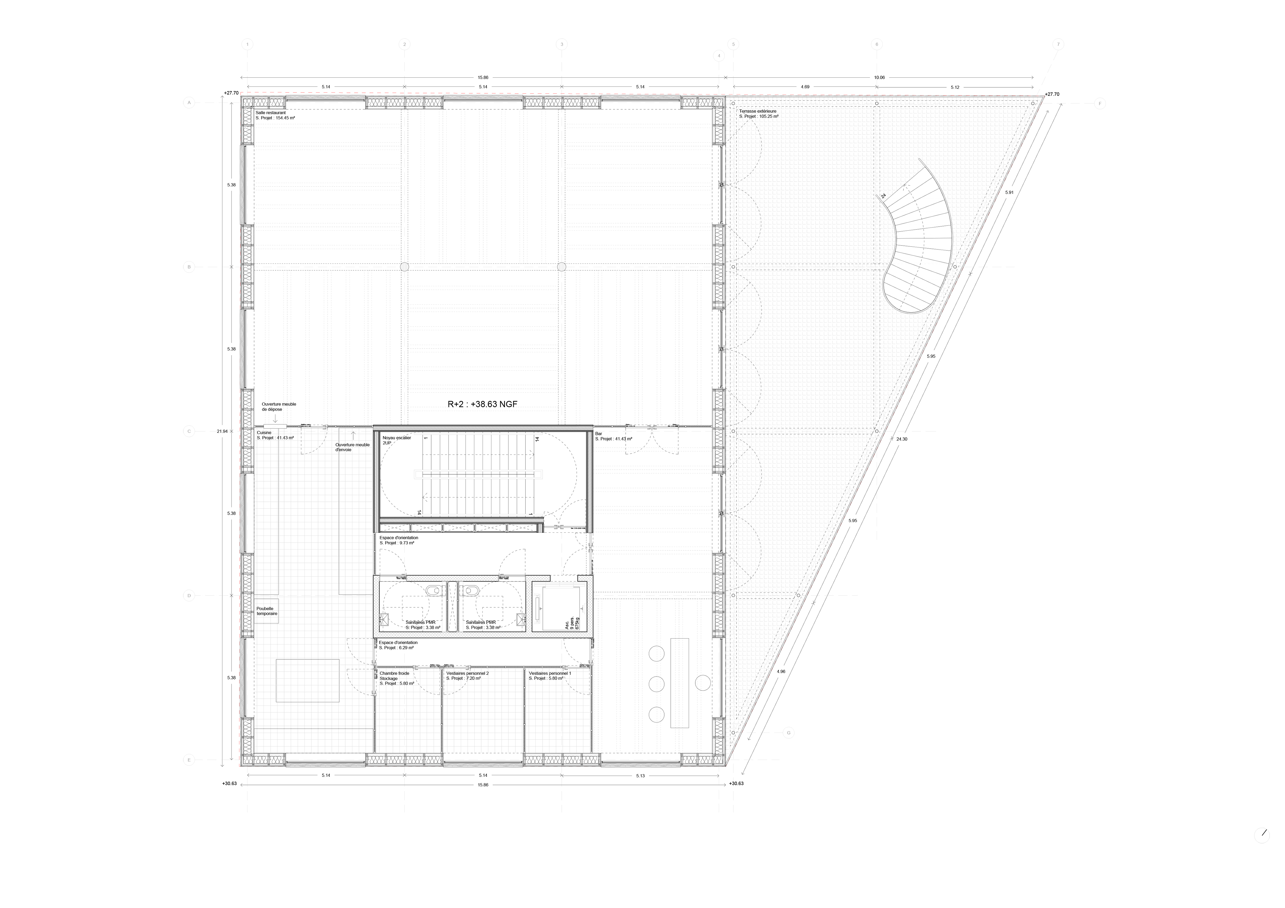
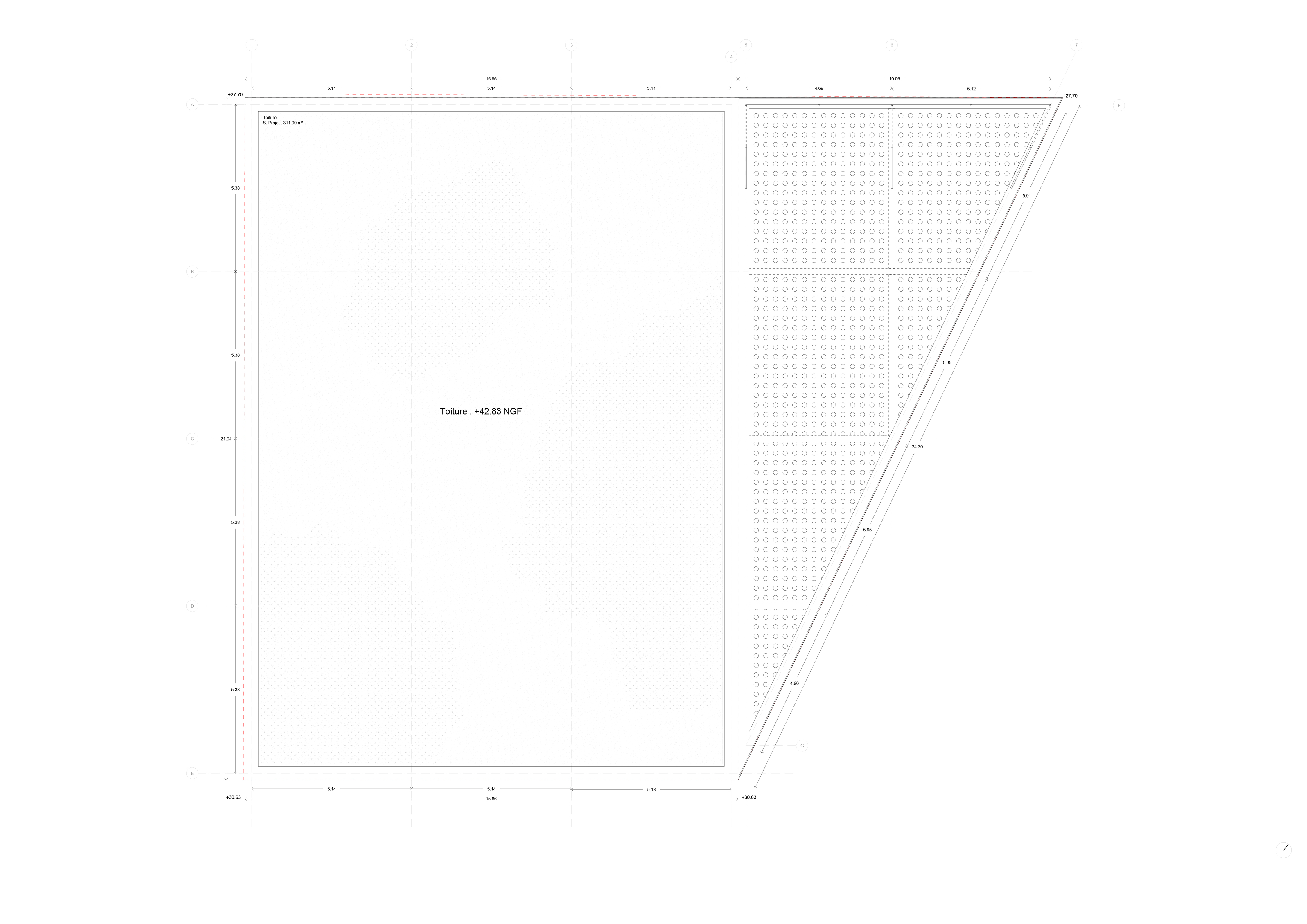
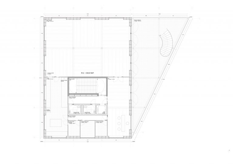
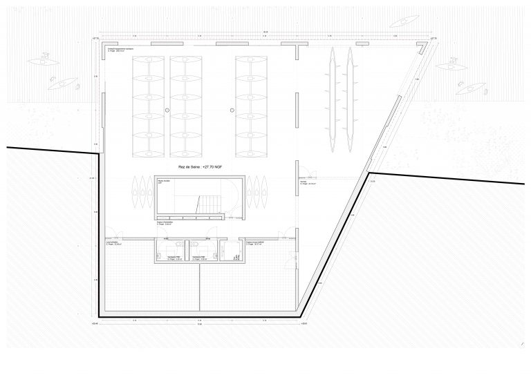
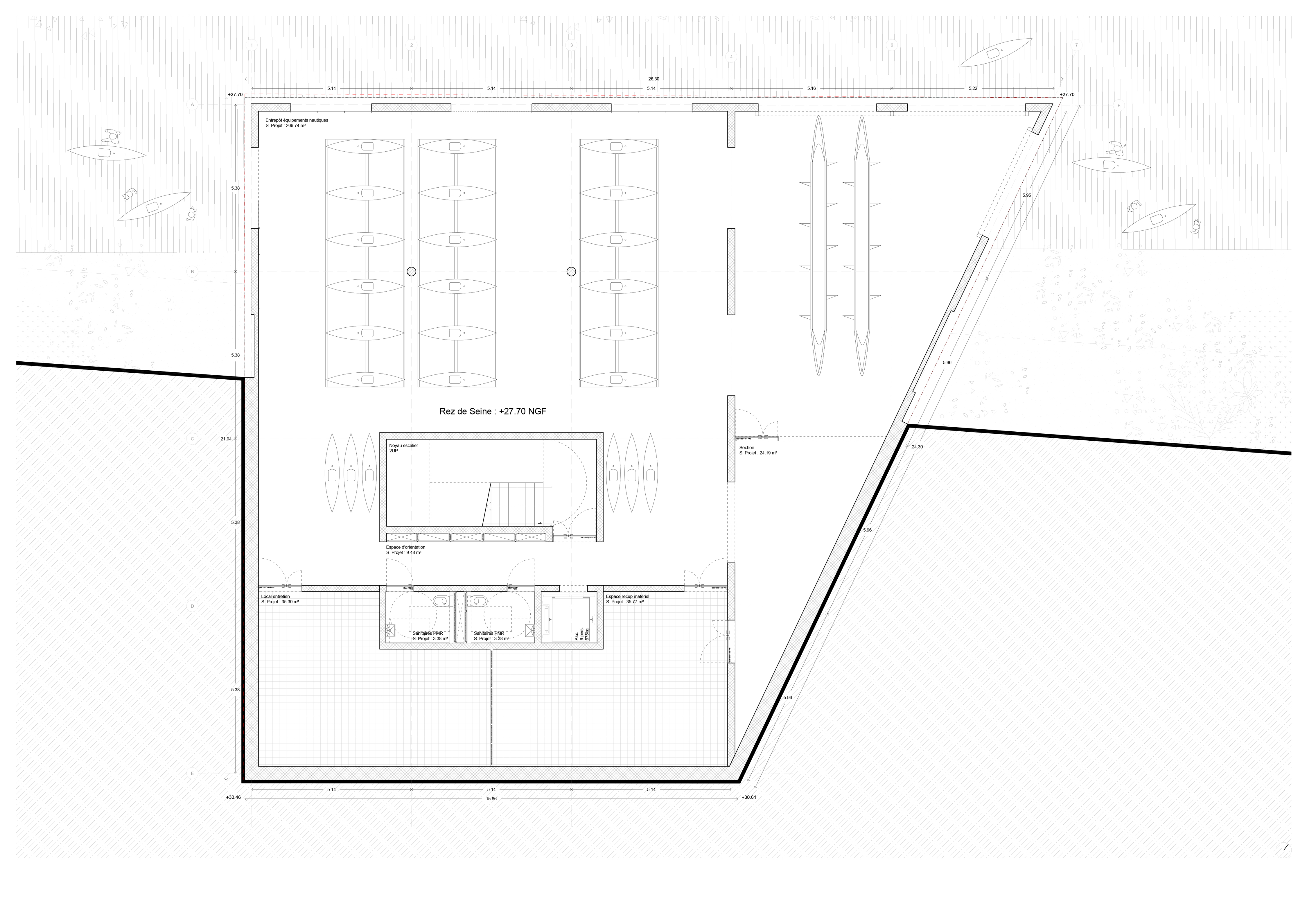
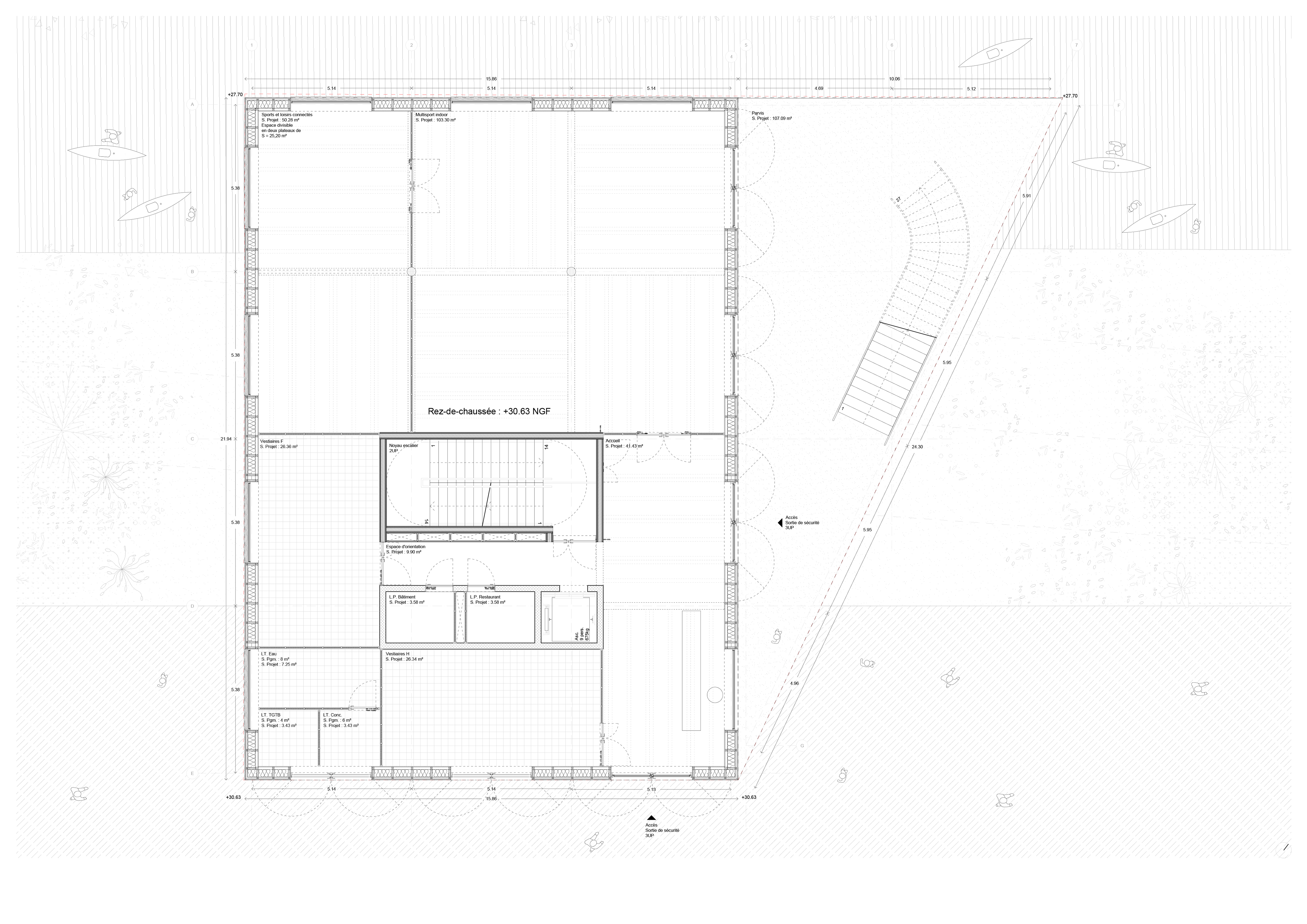
Base nautique

330
infos
infos
2019, Ile-Saint-Denis infos
Année 2019
Lieu Ile-Saint-Denis
Maîtrise d’ouvrage Groupe Pichet + Legendre
Mandataire NP2F
Programme Construction d'une base nautique
Superficie 1 400 m²
Coût 2 000 000
Mission Complète
Statut Chantier en cours