NP2F
149
projet suivant
  • architectes
  • index
  • news
  • à propos
  • contact
open
close

1

2

3

4

5

6

7

8

9

10

11

12

13

14

15

16

17

18

19

20

21

22

23

24

25

26

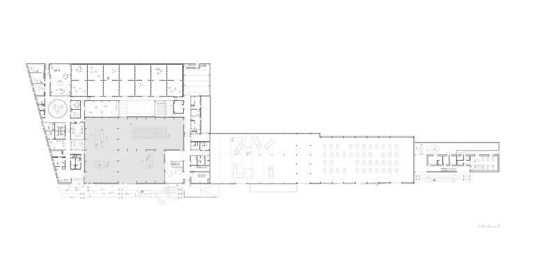
Centre National des Arts du Cirque

149
infos
infos
2011, Châlons-en-Champagne infos
Année 2011
Lieu Châlons-en-Champagne
Maîtrise d’ouvrage OPPIC (ministère de la Culture)
Mandataire Caractère Spécial
Associé NP2F
Avec Base, DVVD, VPEAS, Elithis
Programme Redéploiement du Centre National des Arts du Cirque, réhabilitation et désamiantage des hangars existants, création de salles d’entraînement, de détente, création de logement et de bureaux
Superficie 4 500 m²
Coût 5 200 000
Mission Complète
Statut Livré 2016
Norme Certification HQE
Photographe Sebastien Normand, Antoine Espinasseau, Christophe Manquillet

La question du redéploiement du Centre National des Arts du Cirque sur le site des anciens entrepôts de la Marnaise de Châlons-en-Champagne relaie des enjeux vastes d’image et d’ambition de la ville, mais aussi de label d’une école internationale du cirque. Le redéploiement doit assembler la réhabilitation de deux hangars et la création de nouveaux bâtiments pour former un front uni face à l’autopont qui traverse le site. Des volumes, identifiant chaque programme, sont adossés, empilés, enchevêtrés, mutualisés, fusionnés et hybridés, au service d’une synergie efficace de l’ensemble, de chaque espace, de chaque lieu d’apprentissage. Une porte de dix mètres de hauteur s’ouvre sur la salle “Grand Volant” tandis qu’un escalier sort du volume bardé d’Eternit pour s’élancer vers la route avant de rentrer dans cette ville intérieure.