NP2F
projet précédent
376
projet suivant
  • architectes
  • index
  • news
  • à propos
  • contact
open
close

1

2

3

4

5

6

7

8

9

10

11

12

13

14

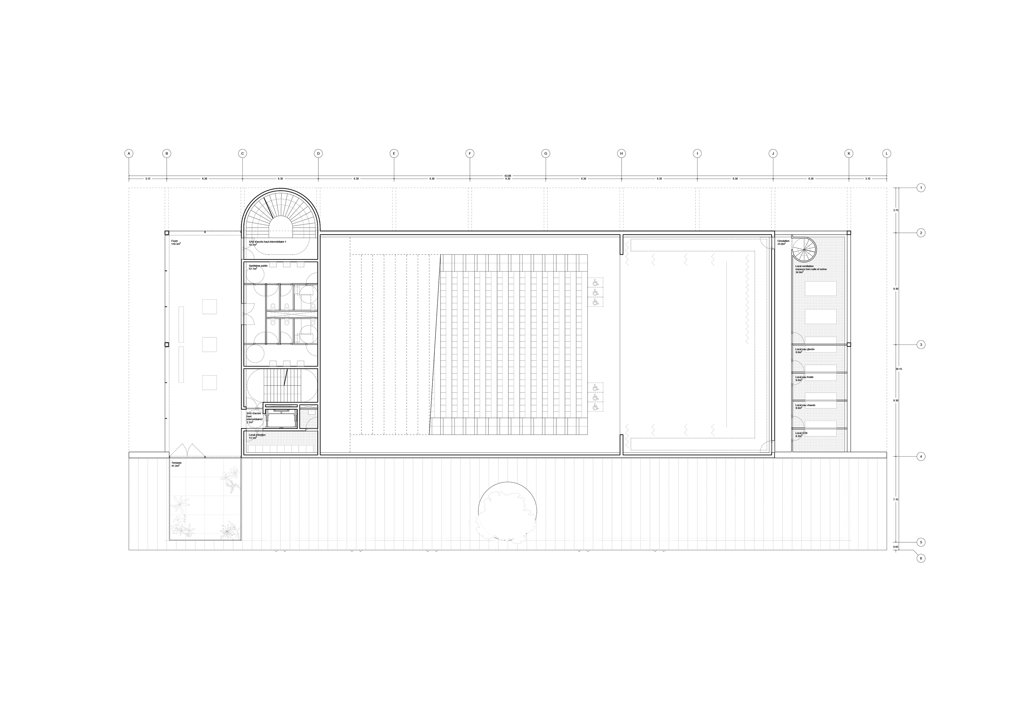
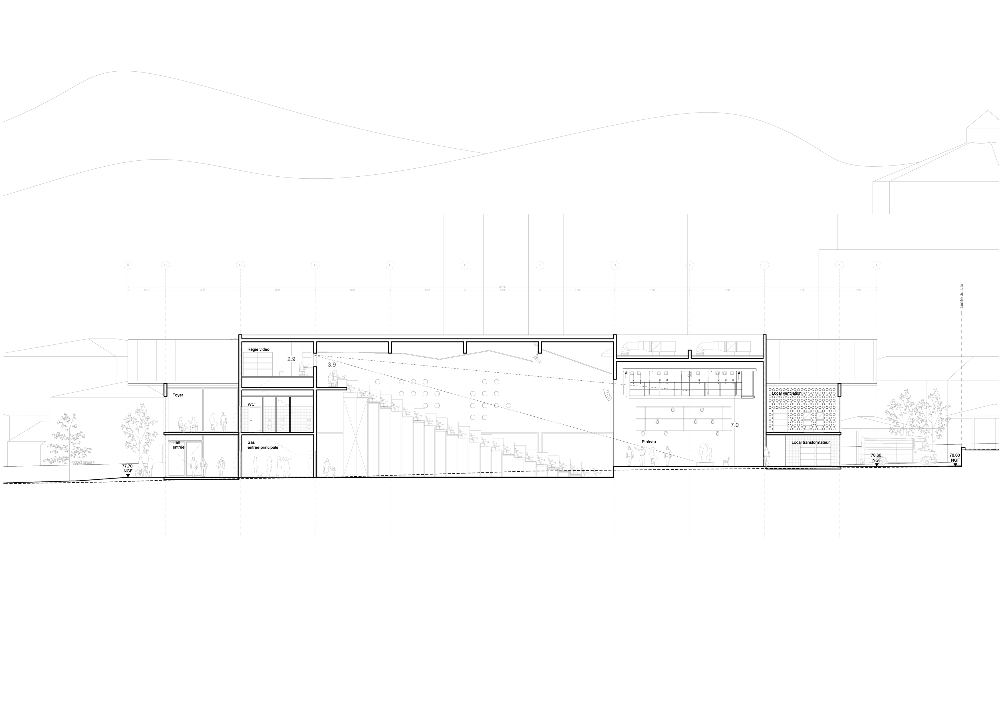
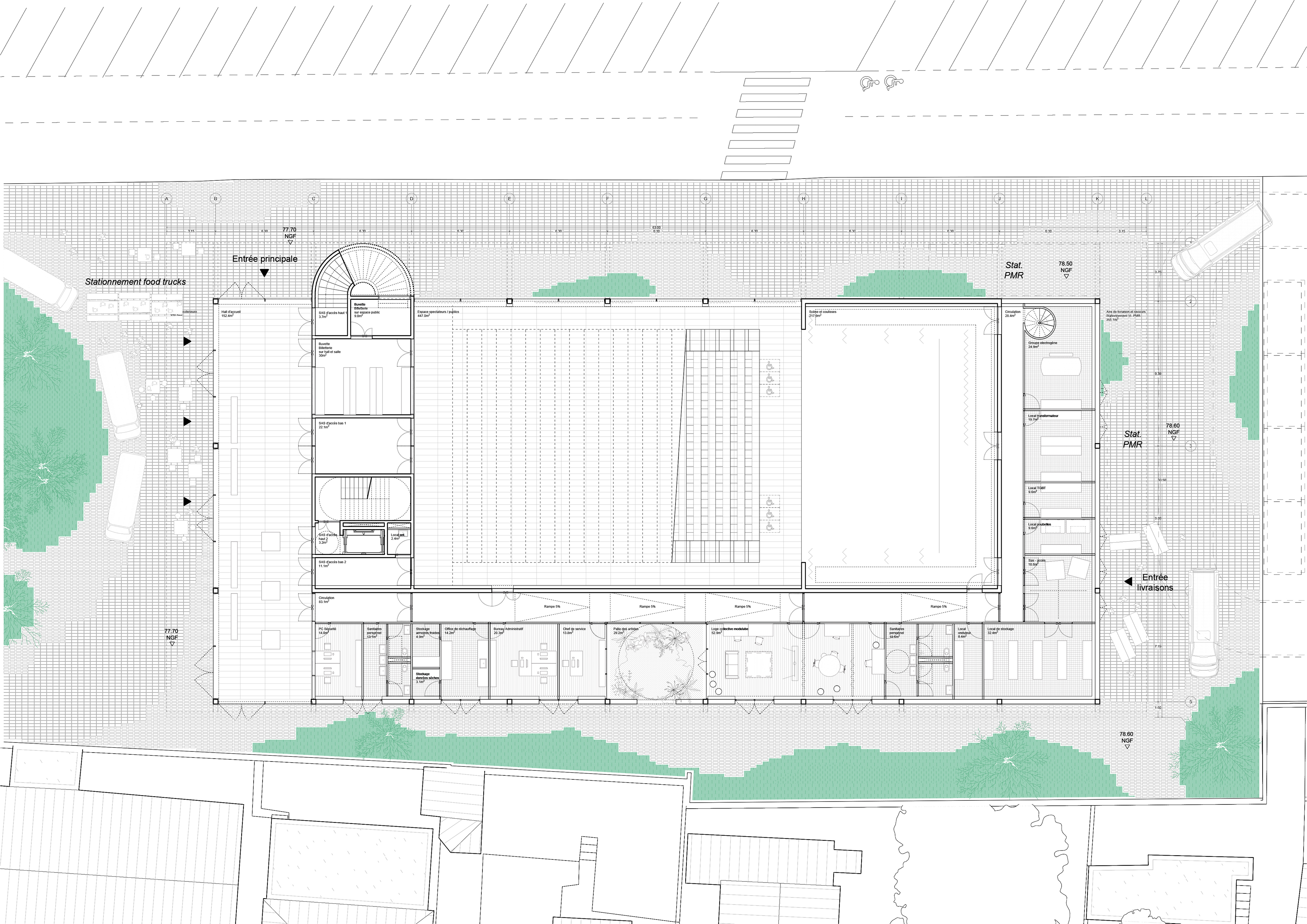
Salle culturelle

376
infos
infos
2022, La Trinité (06) infos
Année 2022
Lieu La Trinité (06)
Maîtrise d’ouvrage Ville de la Trinité
Mandataire NP2F
Avec BATISERF, SCENEVOLUTION, DELOMENIE, ALTIA, ATEVE, CHOULET
Programme Construction d'une salle culturelle et de festivités sur le site "Les Gerles"
Superficie 1 140 m²
Coût 3 488 000 €
Mission Complète
Statut Concours