NP2F
projet précédent
390
projet suivant
  • architectes
  • index
  • news
  • à propos
  • contact
open
close

1

2

3

4

5

6

7

8

9

10

11

12

13

14

15

16

17

18

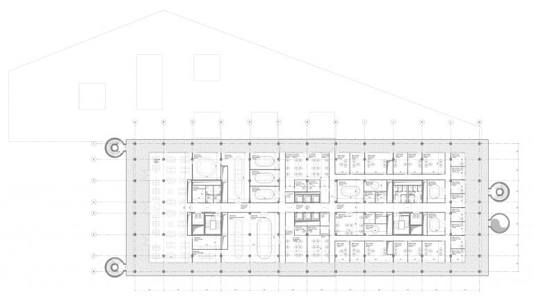
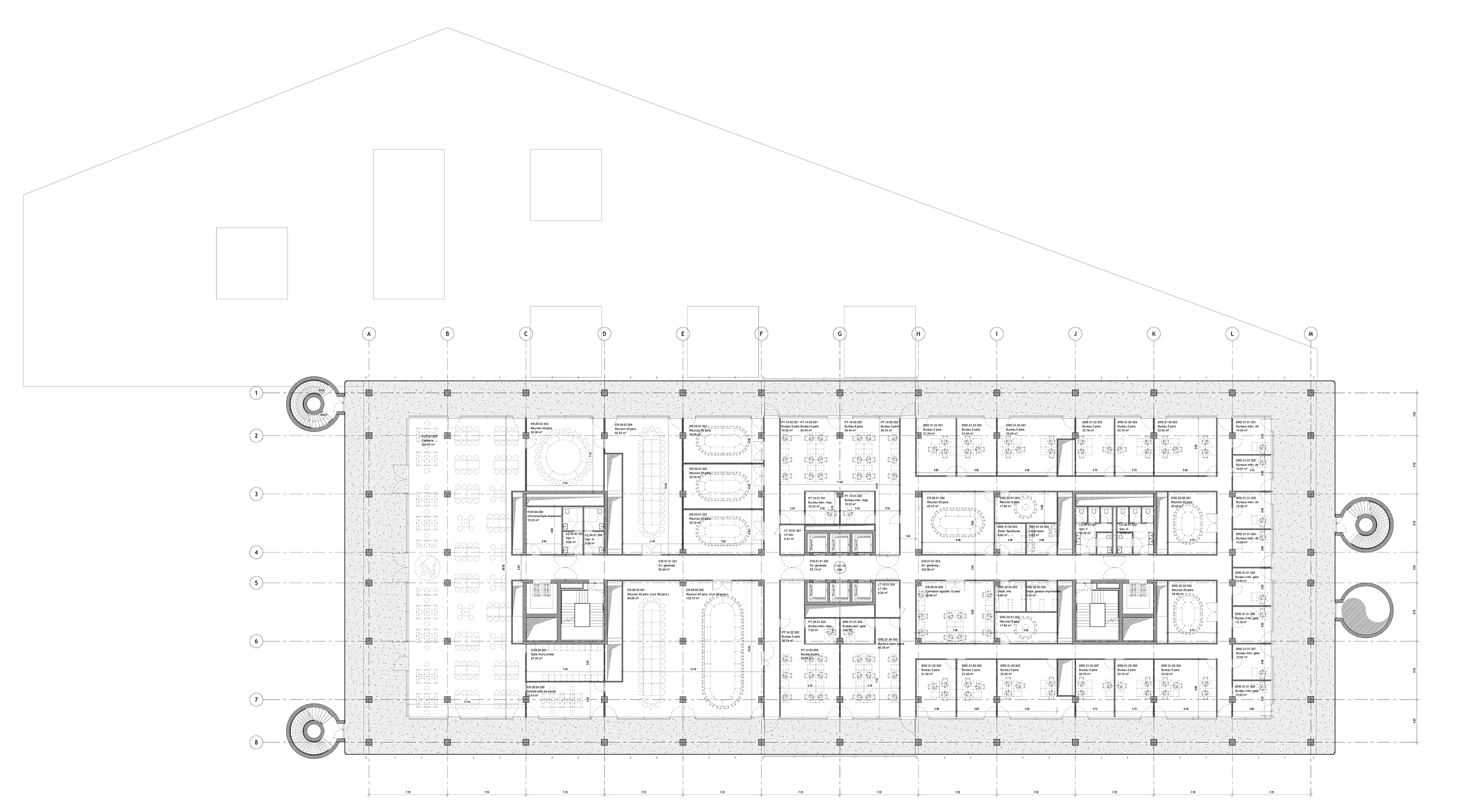
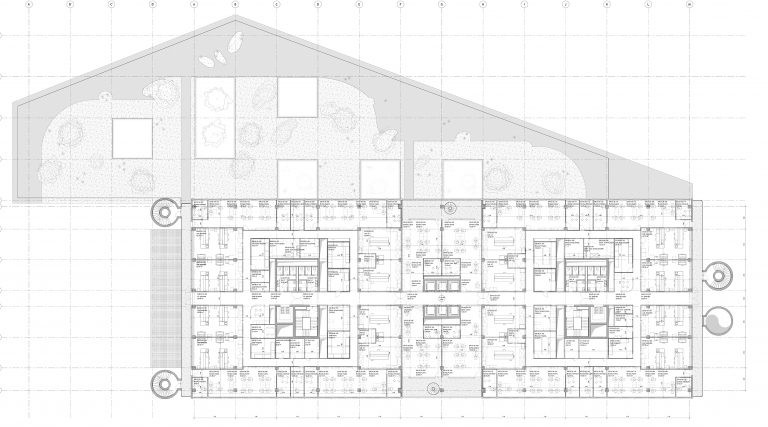
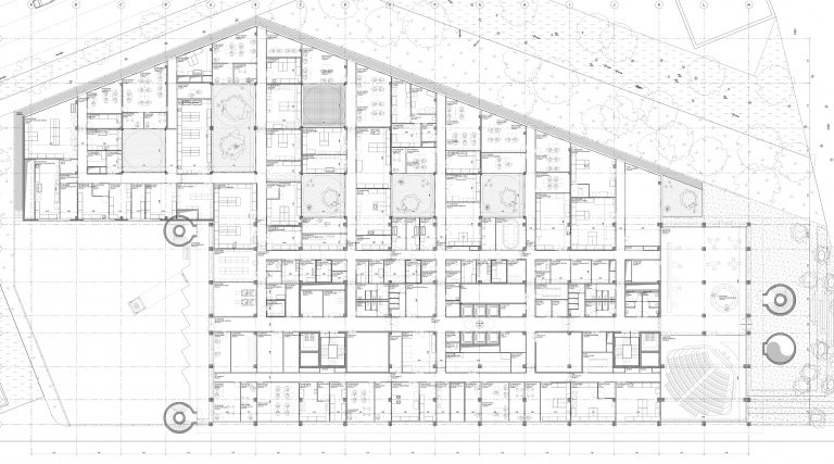
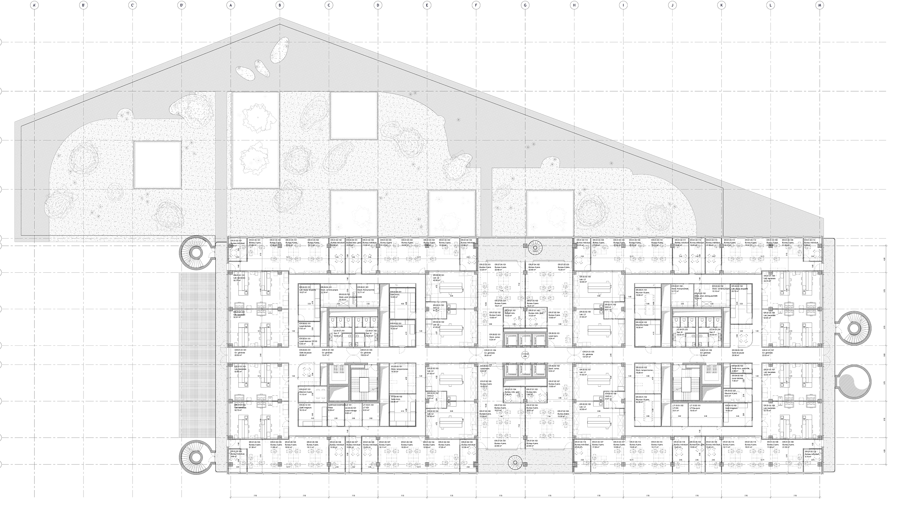
Nouveau Centre de recherche – Hôpital Gustave Roussy

390
infos
infos
2024, Villejuif infos
Année 2024
Lieu Villejuif
Maîtrise d’ouvrage Institut Gustave Roussy
Mandataire l'AUC
Associé NP2F
Avec GRAU, MOSBAH, ARCADIS, ELIX, CERIS, VS-A, ATMOS LAB, PEUTZ, ATELIER JUNO, BATISS
Programme Construction d'un bâtiment de recherche pour l'Institut Gustave Roussy
Superficie 22 338
Coût 100 000 000
Mission Complète
Statut APD