NP2F
projet précédent
289
projet suivant
  • architectes
  • index
  • news
  • à propos
  • contact
open
close

1

2

3

4

5

6

7

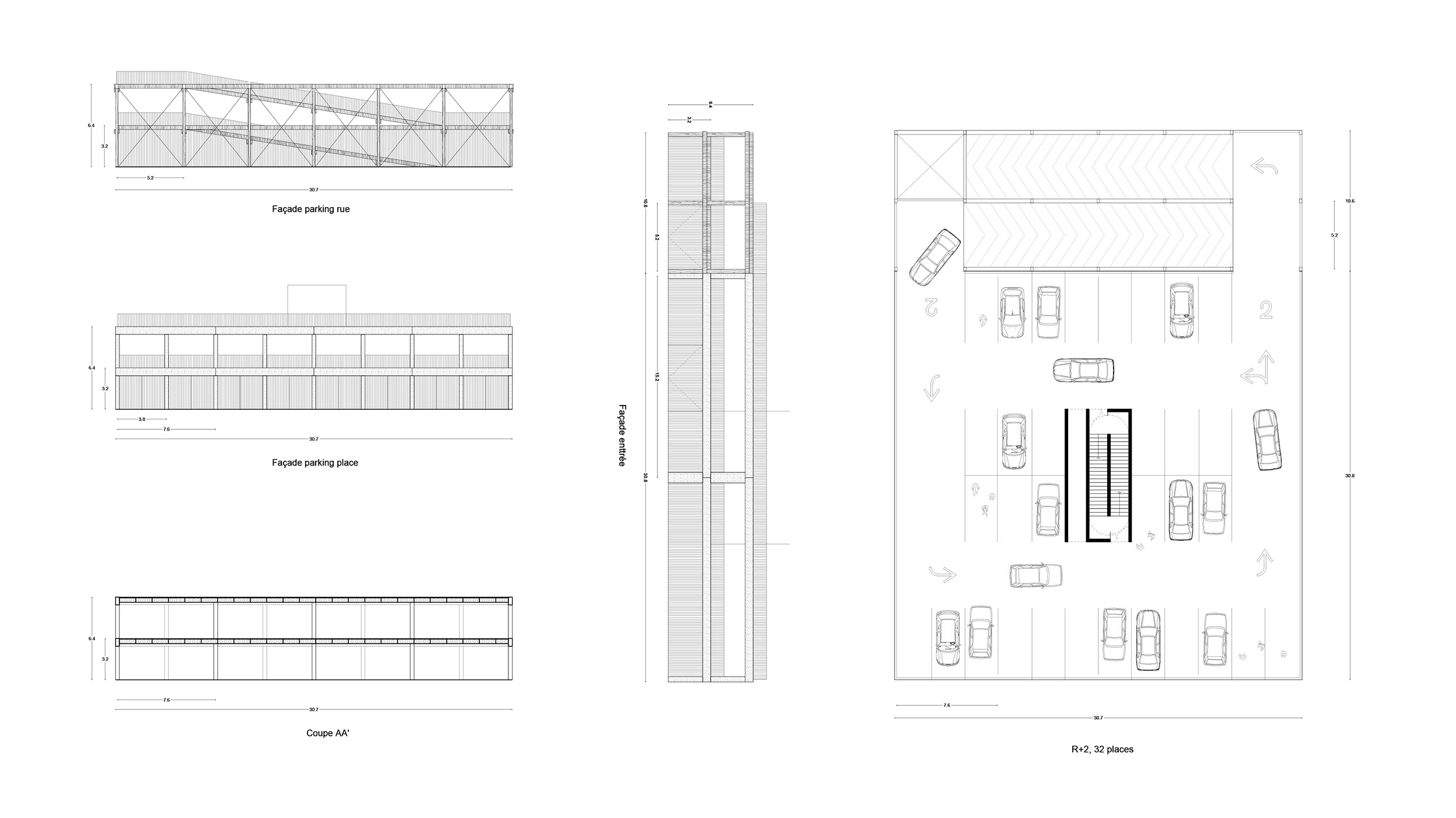
Place

289
infos
infos
2018, Marseille infos
Année 2018
Lieu Marseille
Maîtrise d’ouvrage Friche de la Belle de Mai
Mandataire NP2F
Associé Marion Bernard
Programme Place
Statut Concours