NP2F
projet précédent
313
projet suivant
  • architectes
  • index
  • news
  • à propos
  • contact
open
close

1

2

3

4

5

6

7

8

9

10

11

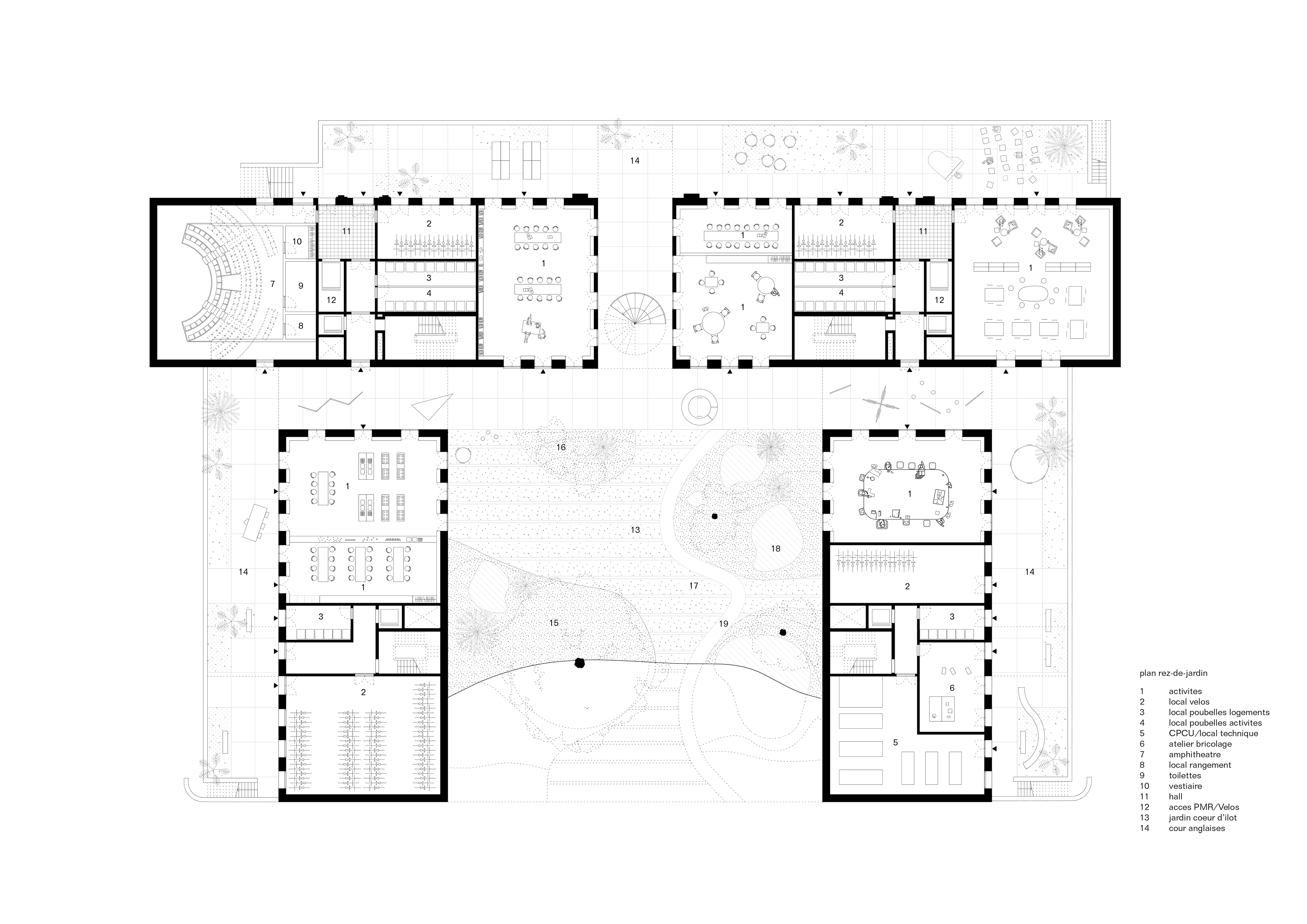
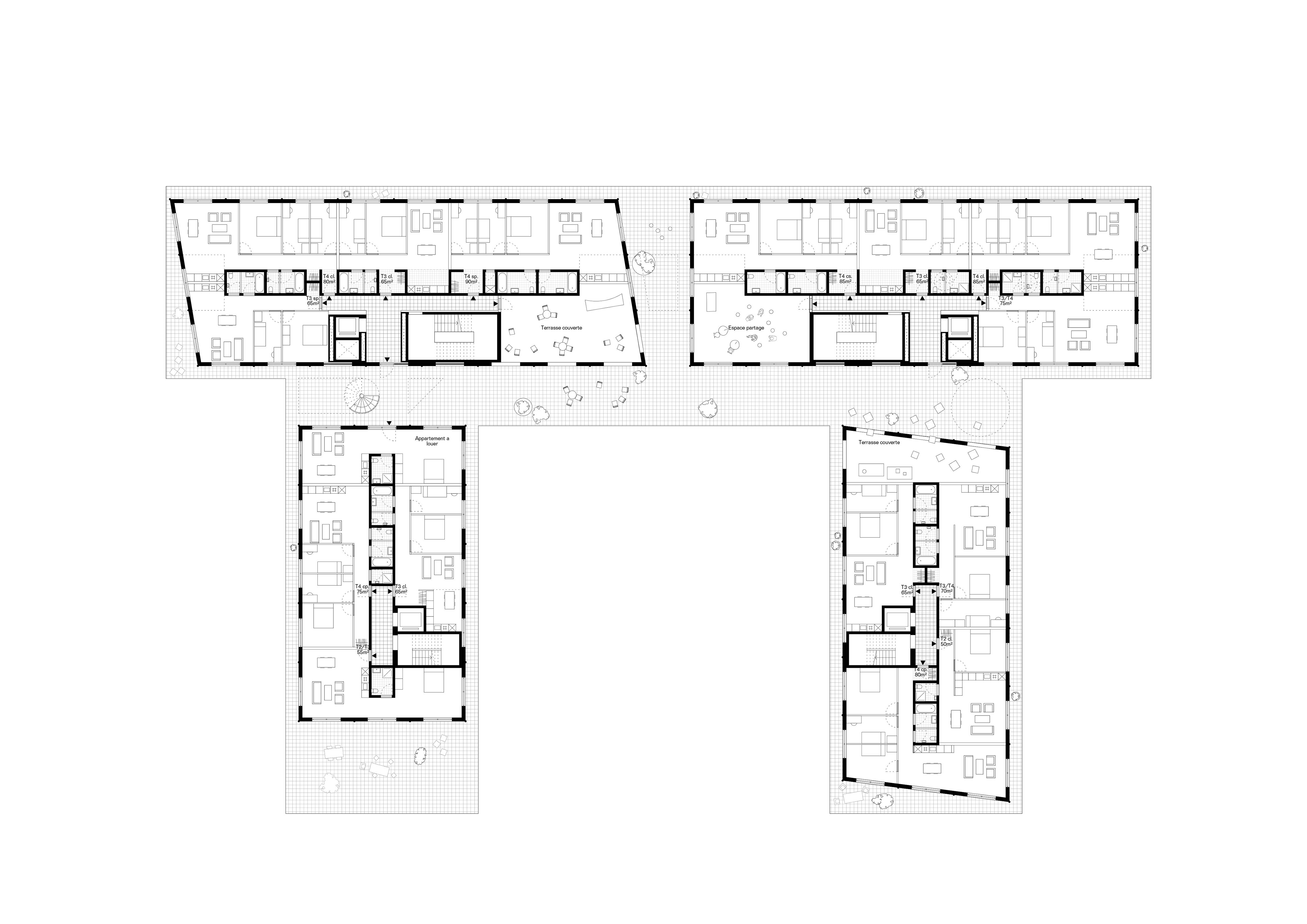
Logements

313
infos
infos
2019, Saint-Vincent-de-Paul, Paris 14 infos
Année 2019
Lieu Saint-Vincent-de-Paul, Paris 14
Maîtrise d’ouvrage Vinci Immobilier + REDMAN
Mandataire NP2F
Associé OFFICE
Programme Réhabilitation et surélévation du bâtiment Lelong en 144 logements
Superficie 9 890 m²
Mission Complète
Statut Concours