NP2F
220
architectes
index
news
à propos
contact
Mies van der Rohe Award
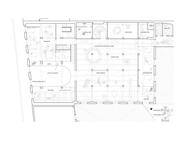
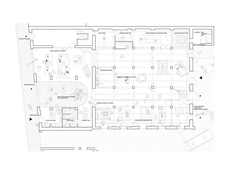
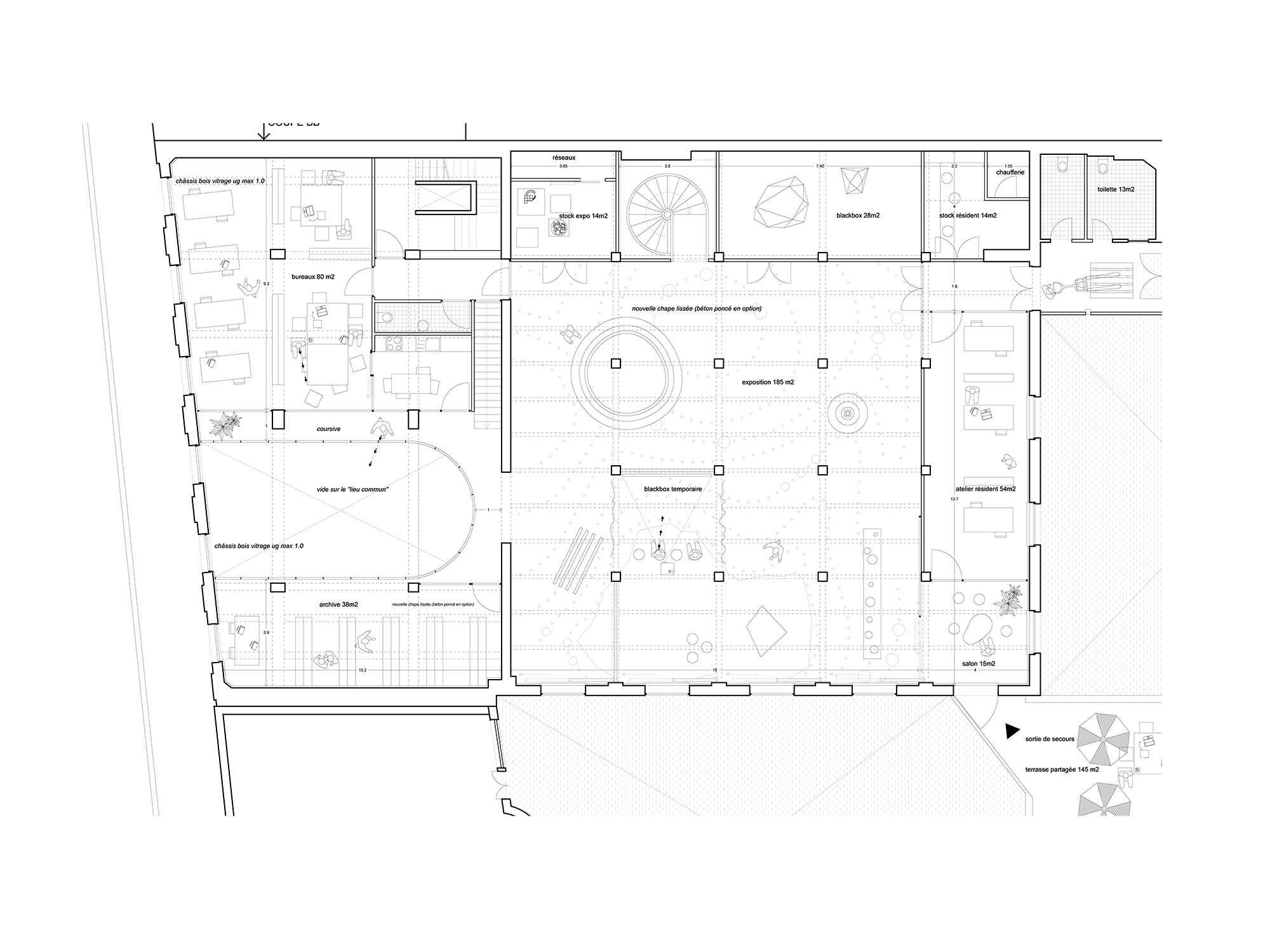
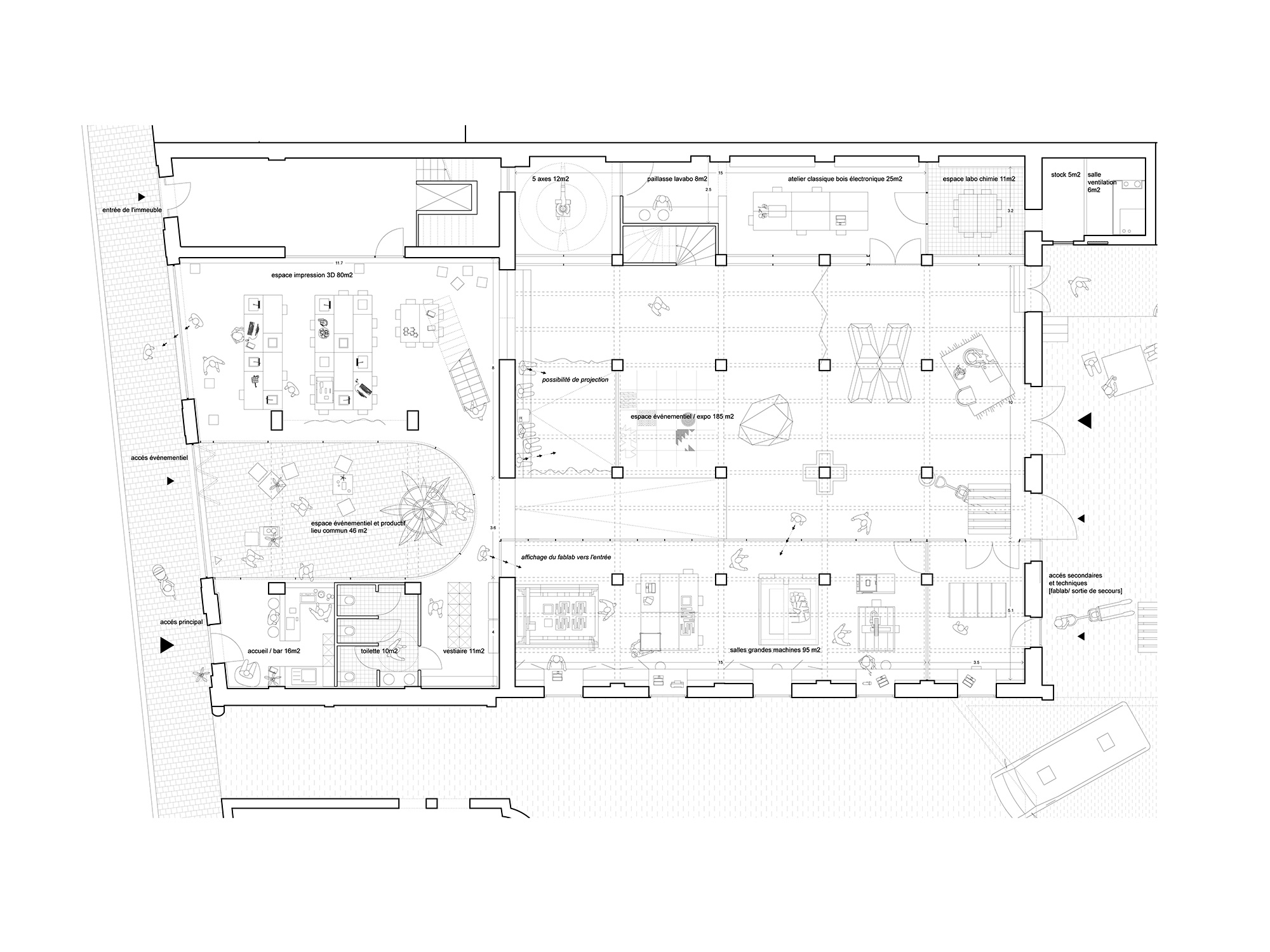
Nous sommes heureux d’annoncer que notre projet de Centre d’Art dédié aux cultures digitales et à la technologie de Bruxelles, réalisé avec l’agence
Central architects
est nominé au
EU Prize for Contemporary Architecture – Mies van der Rohe Award 2022
.
We are pleased to announce that our Art Center project dedicated to digital cultures and technology in Brussels, realized with
Central architects
, has been nominated for the
EU Prize for Contemporary Architecture – Mies van der Rohe Award 2022
.
1
2
3
4
5
6
7
8
9
10
11
12
13
14
15
16
17
18
19
Mies van der Rohe Award