NP2F
projet précédent
356
projet suivant
  • architectes
  • index
  • news
  • à propos
  • contact
open
close

1

2

3

4

5

6

7

8

9

10

11

12

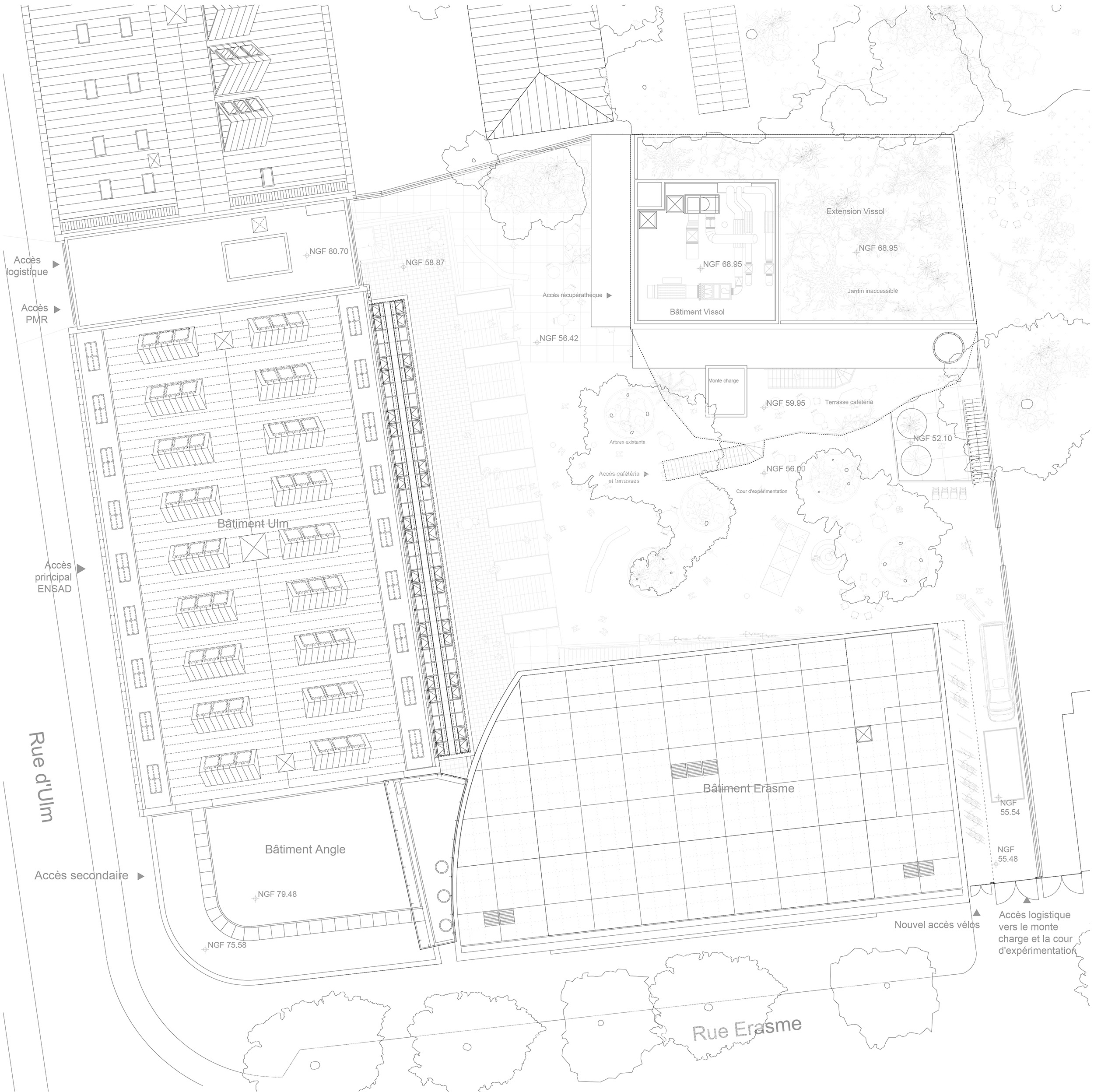
Ecole nationale supérieure des arts décoratifs

356
infos
infos
2021, Paris 05 infos
Année 2021
Lieu Paris 05
Maîtrise d’ouvrage OPPIC
Mandataire NP2F
Avec VPEAS, BATISERF, B52, ATMOS LAB
Programme Extension de l'Ecole Nationale des Arts Décoratifs
Superficie 1 318 m²
Coût 3 380 000
Mission Complète
Statut Concours