NP2F
projet précédent
345
projet suivant
  • architectes
  • index
  • news
  • à propos
  • contact
open
close

1

2

3

4

5

6

7

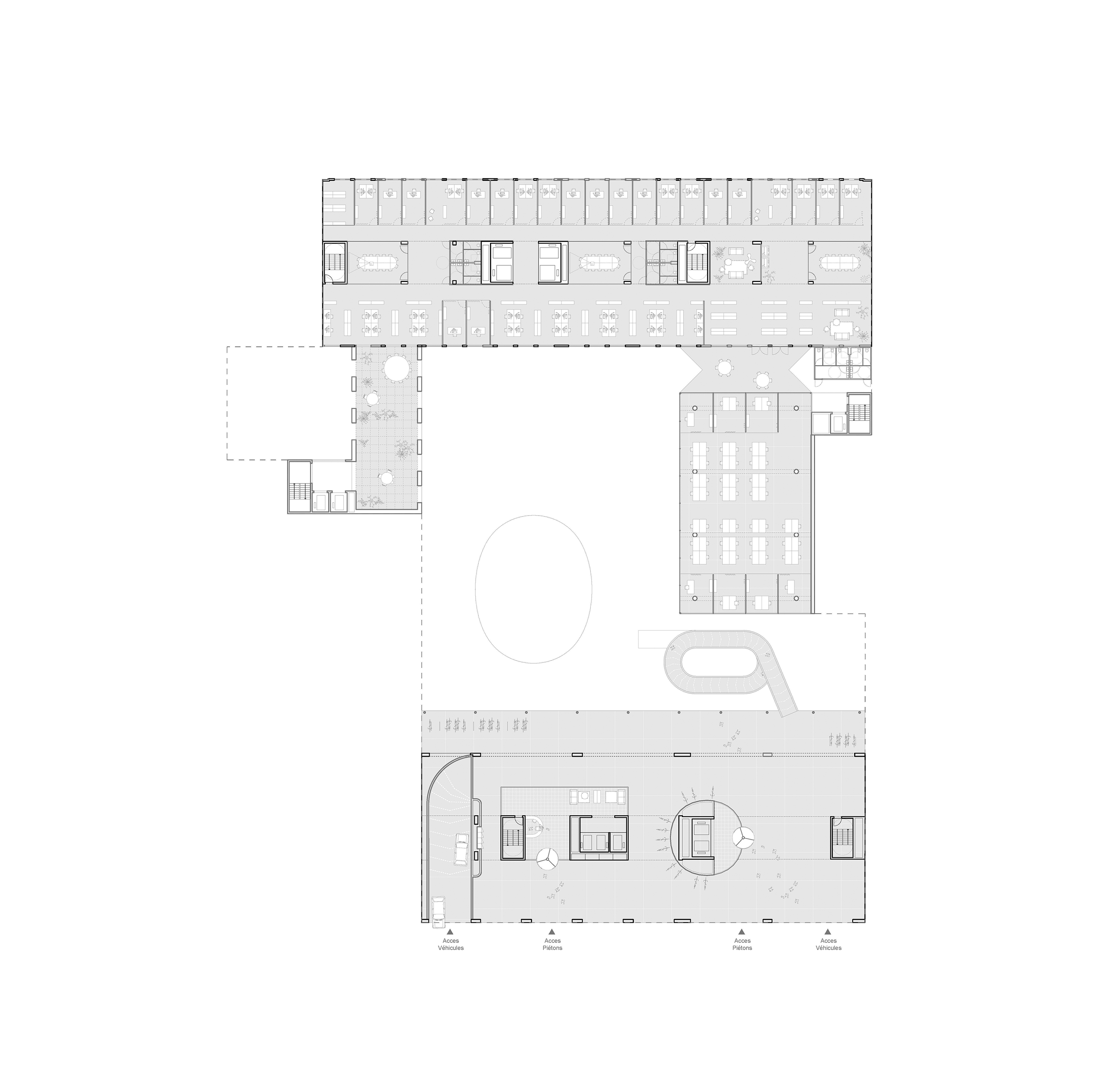
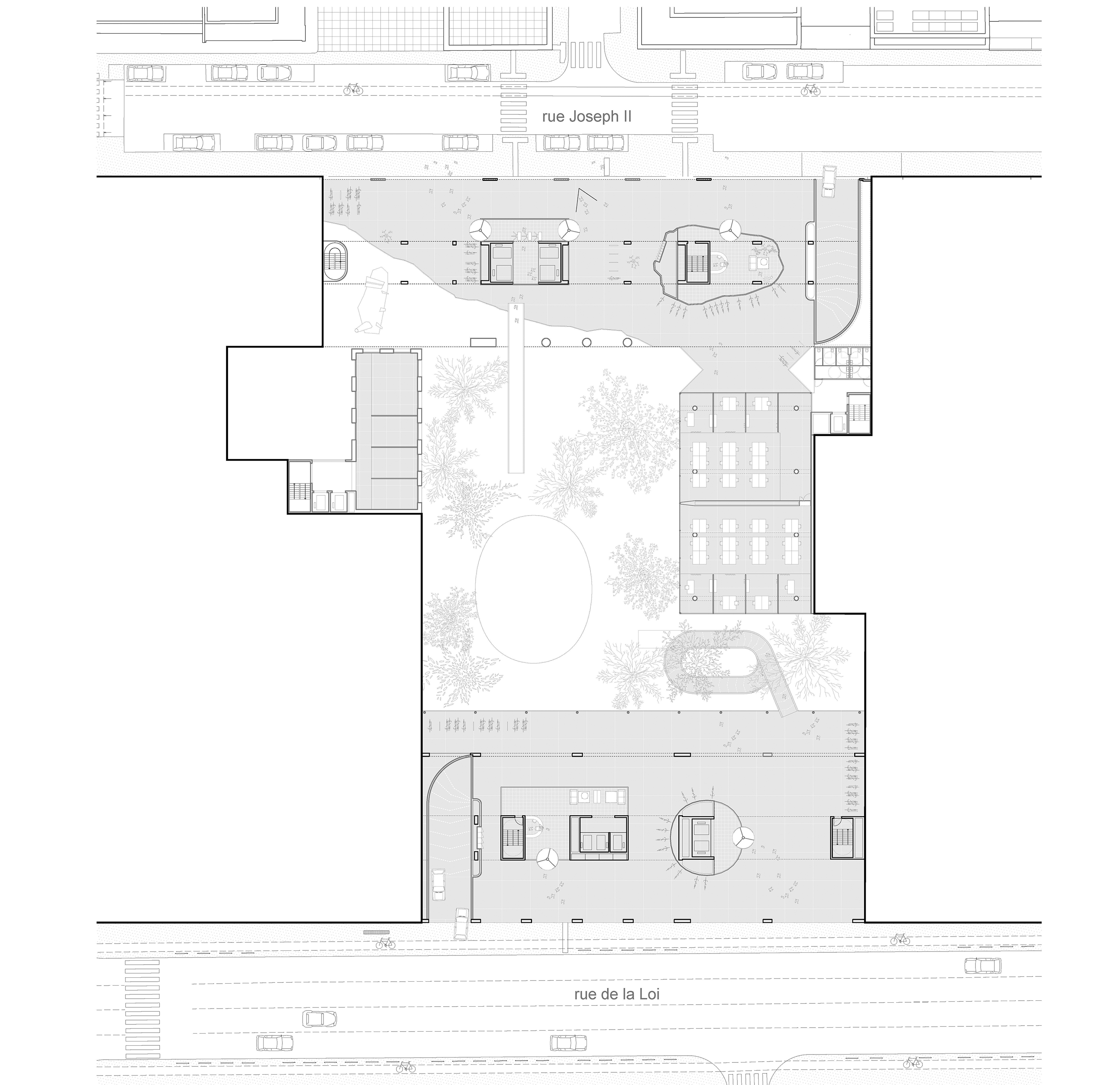
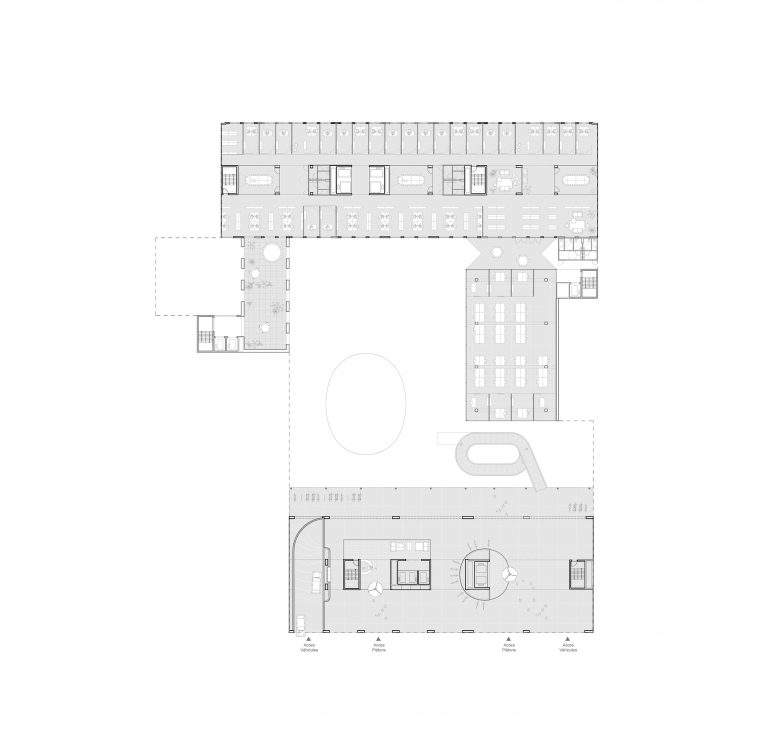
Bureaux

345
infos
infos
2020, Bruxelles (BE) infos
Année 2020
Lieu Bruxelles (BE)
Maîtrise d’ouvrage BEFIMMO
Mandataire NP2F
Programme Réhabilitation d'un bâtiment existant en bureaux, espaces de co-working, ateliers
Superficie 23 180 m²
Mission Complète
Statut Concours