NP2F
projet précédent
257
projet suivant
  • architectes
  • index
  • news
  • à propos
  • contact
open
close

1

2

test de légende

3

4

5

6

7

8

9

10

11

12

13

14

15

16

17

18

19

20

21

22

23

24

25

26

27

28

29

30

31

32

33

34

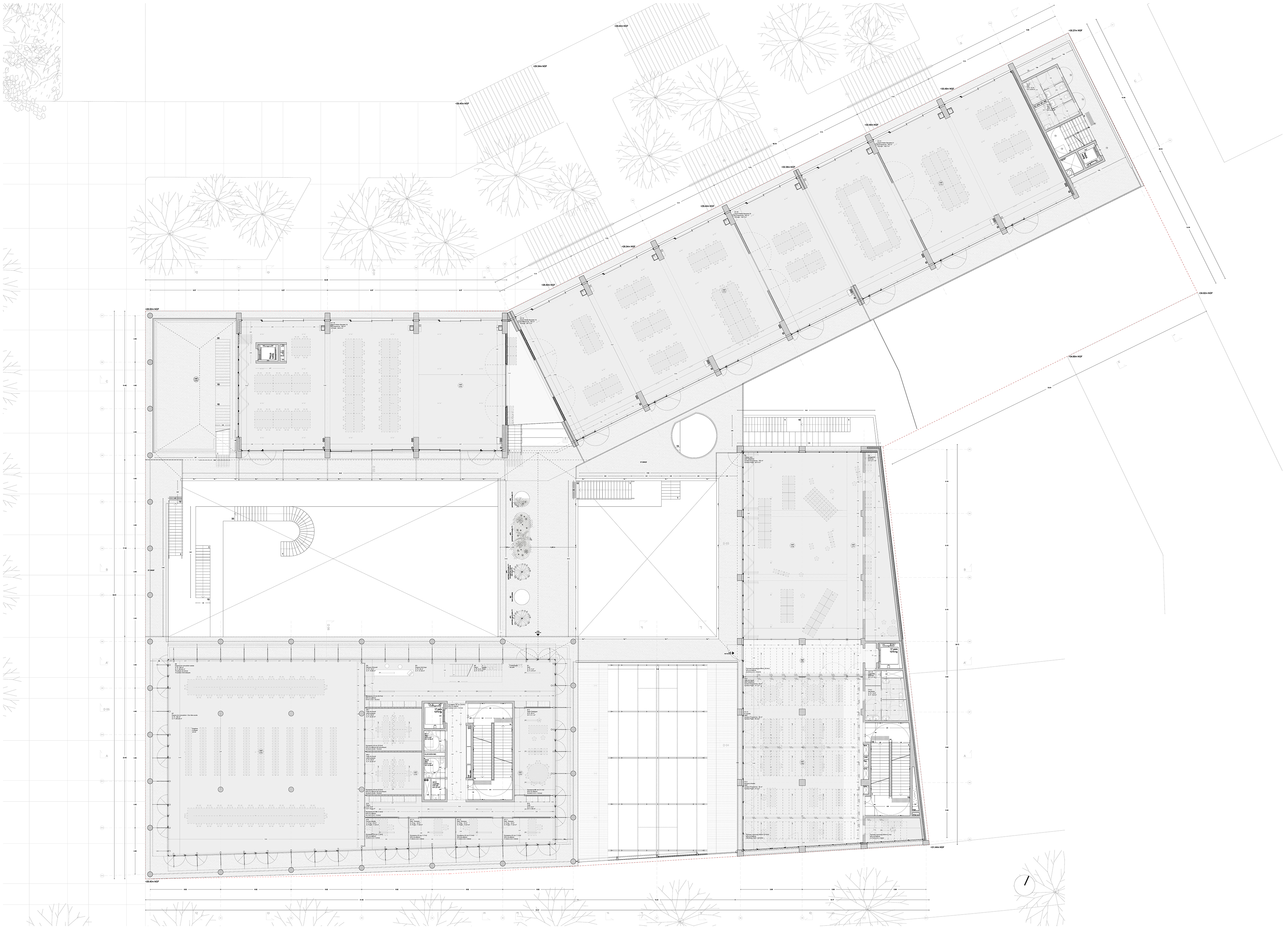
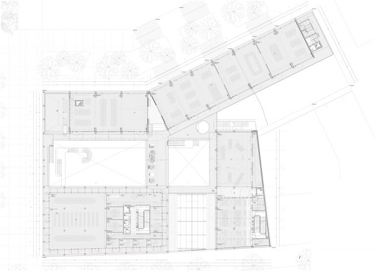
IMVT

257
infos
infos
2017, Marseille infos
Année 2017
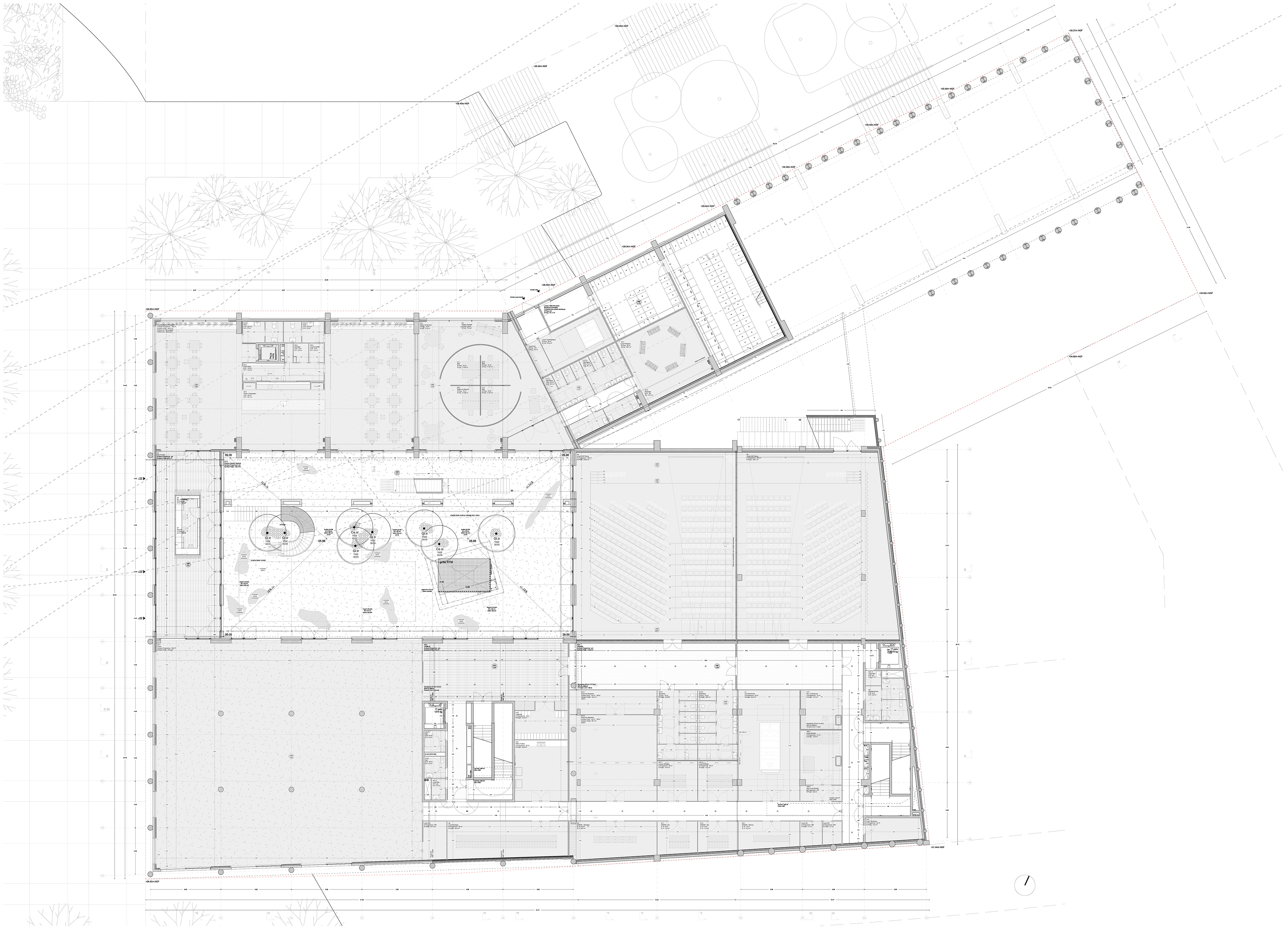
Lieu Marseille
Maîtrise d’ouvrage OPPIC
Mandataire NP2F
Associé Marion Bernard, Point Supreme, Jacques Lucan
Avec Atelier Roberta, DVVD, Alto ingénierie, VPEAS, Peutz, 8-18
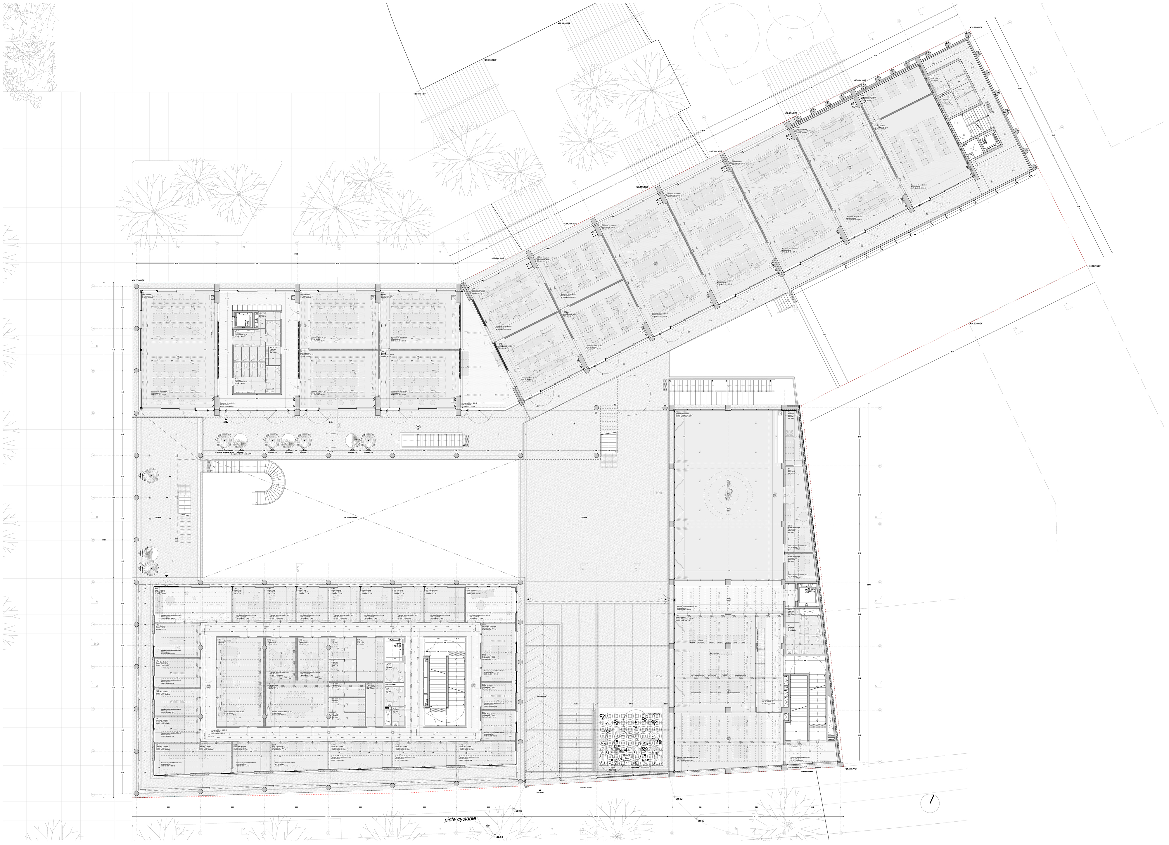
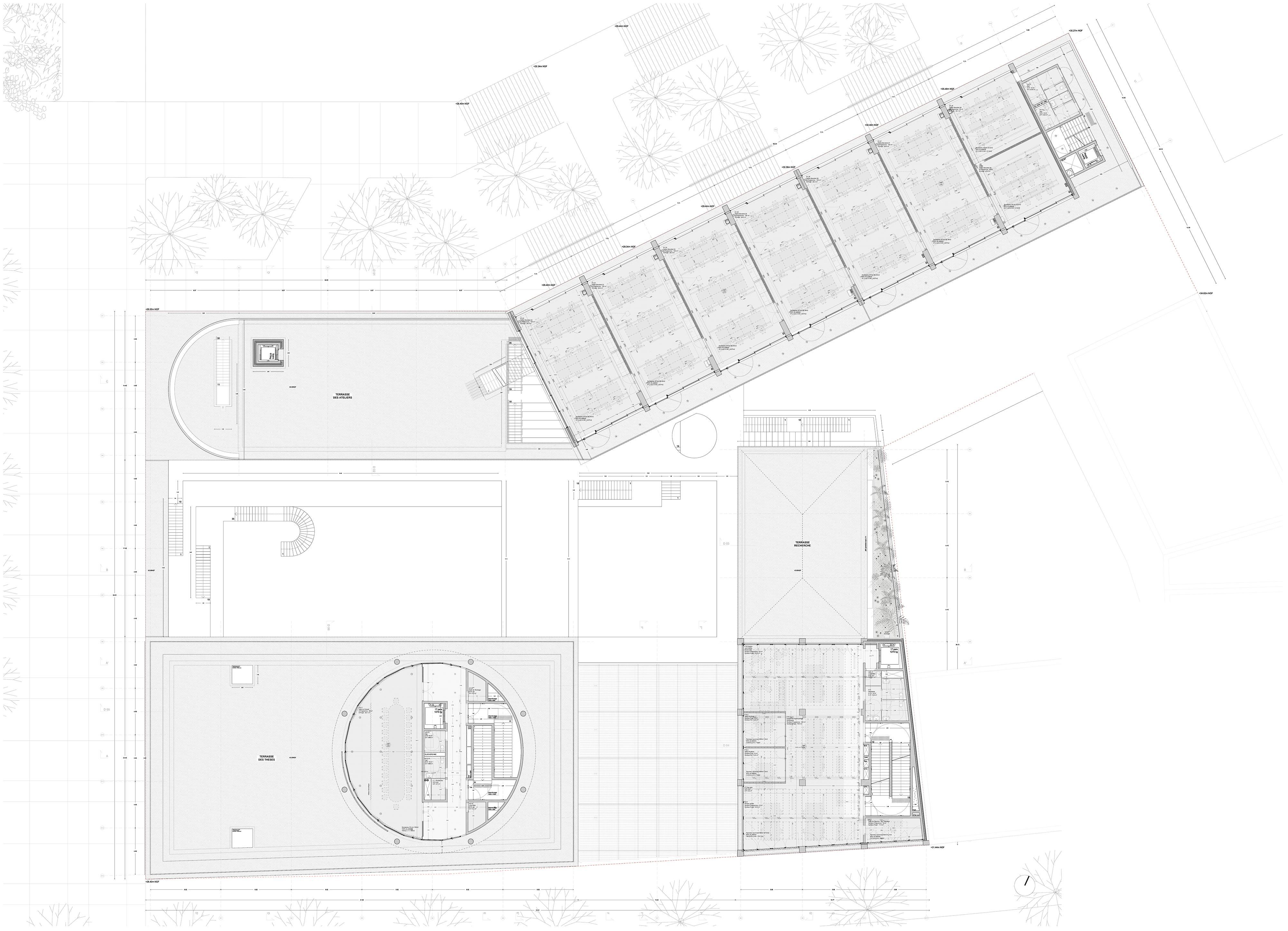
Programme Construction de l'Institut Méditerranéen de la Ville et des Territoires
Superficie 12 500 m² (+ 8 500 m² d'espaces extérieurs)
Coût 26 000 000
Mission Complète
Statut livré en 2023
Photographe @Maxime Delvaux, @Antoine Espinasseau