NP2F
projet précédent
326
projet suivant
  • architectes
  • index
  • news
  • à propos
  • contact
open
close

1

2

3

4

5

6

7

8

9

10

11

12

13

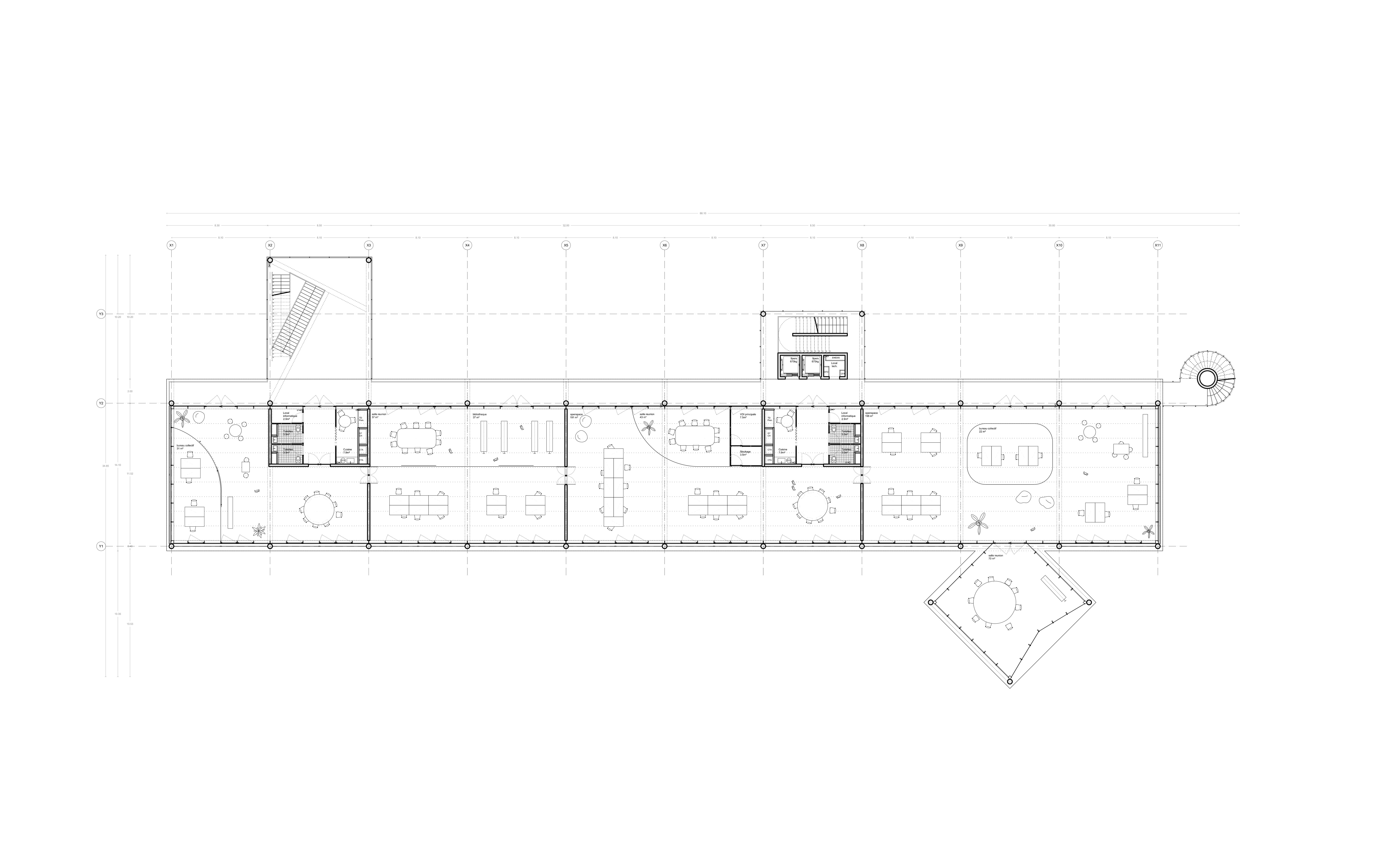
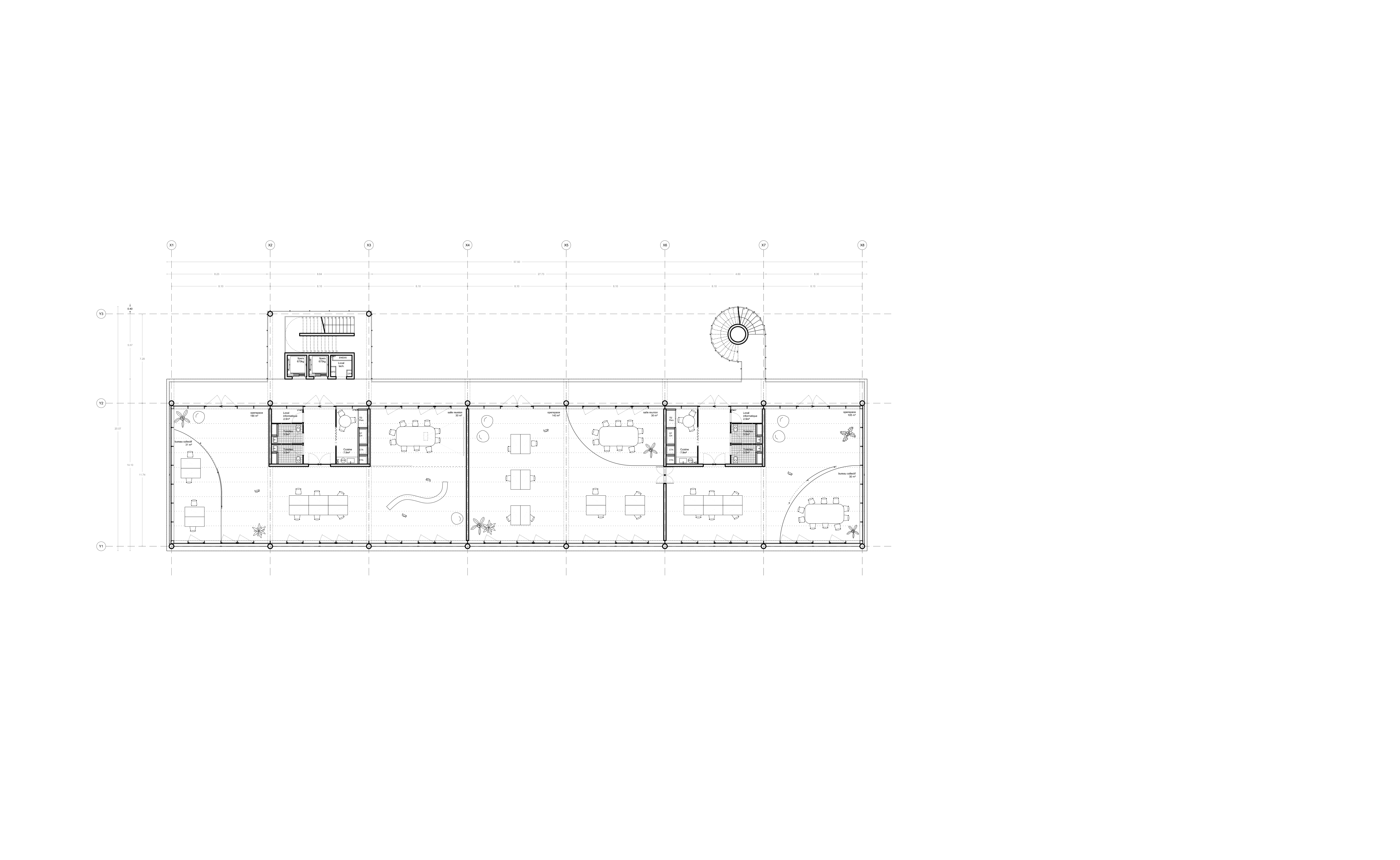
Bureaux

326
infos
infos
2019, Villenave d'Ornon infos
Année 2019
Lieu Villenave d'Ornon
Maîtrise d’ouvrage Domaine de Geneste
Mandataire NP2F
Avec Bollinger & Grohmann, Alto Ingénierie, VPEAS
Programme Construction de 3 bâtiments de bureaux
Superficie 10 000 m²
Coût 12 500 000
Mission Complète
Statut ACT en cours