NP2F
projet précédent
402
projet suivant
  • architectes
  • index
  • news
  • à propos
  • contact
open
close

1

2

3

4

5

6

7

8

9

10

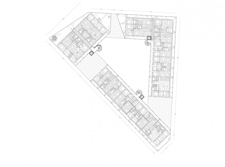
Logements / Parking

402
infos
infos
2024, ZAC Littorale, Marseille (13) infos
Année 2024
Lieu ZAC Littorale, Marseille (13)
Maîtrise d’ouvrage EPA Euroméditerranée
Associé Concorde architecture et urbanisme
Avec SOGEPROM, GA smart building
Programme Logements libres et LLS, commerces, parking
Superficie 8 425 m²
Coût 25 176 100
Mission Complète
Statut Concours