NP2F
projet précédent
398
projet suivant
  • architectes
  • index
  • news
  • à propos
  • contact
open
close

1

2

3

4

5

6

7

8

9

10

11

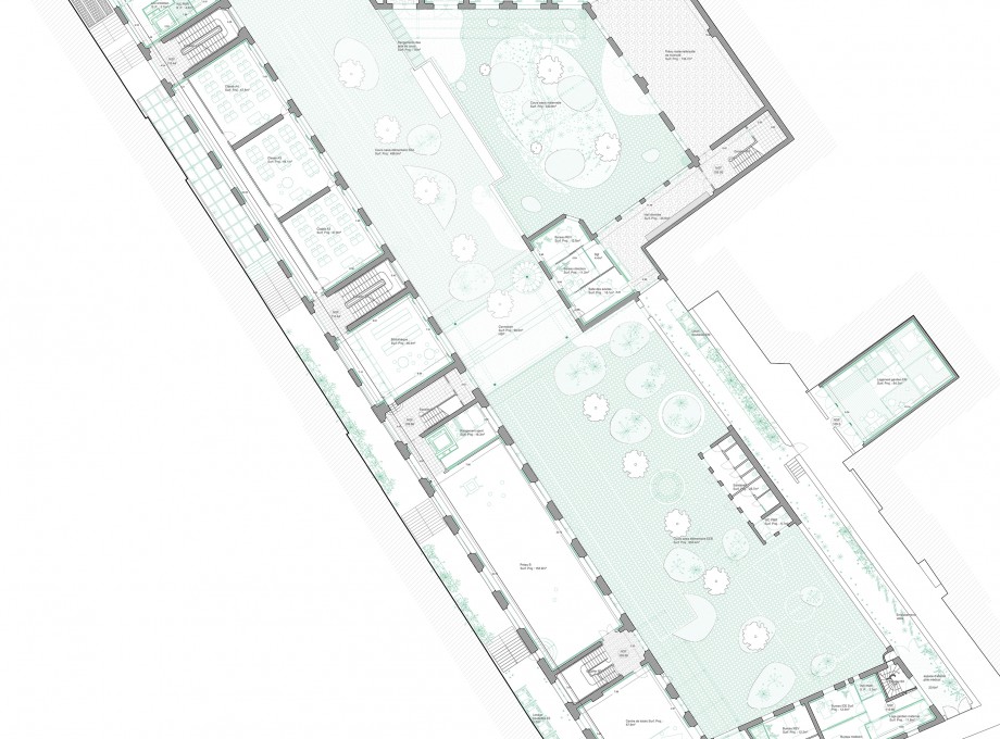
Groupe scolaire

398
infos
infos
2024, Paris 19ème infos
Année 2024
Lieu Paris 19ème
Maîtrise d’ouvrage Ville de Paris
Mandataire NP2F
Programme Restructuration du groupe scolaire Romainville
Superficie 5 100 m²
Coût 8 900 000
Mission Complète
Statut DCE