NP2F
projet précédent
404
projet suivant
  • architectes
  • index
  • news
  • à propos
  • contact
open
close

1

2

3

4

5

6

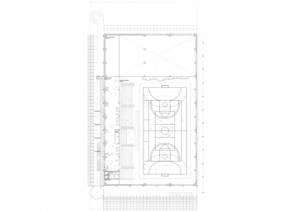
404_SD_P_R+3_200

7

8

9

10

11

Complexe sportif

404
infos
infos
2024, Mantes-la-Jolie infos
Année 2024
Lieu Mantes-la-Jolie
Maîtrise d’ouvrage Ville de Mantes-la-Jolie
Mandataire NP2F
Associé Le studio Sanna Baldé
Programme Construction d'un équipement sportif
Superficie 8 440 m²
Coût 16 000 000
Mission Complète
Statut Concours