NP2F
projet précédent
284
projet suivant
  • architectes
  • index
  • news
  • à propos
  • contact
open
close

1

2

3

4

5

6

7

8

9

10

11

12

13

14

15

16

17

18

19

20

21

22

23

24

25

26

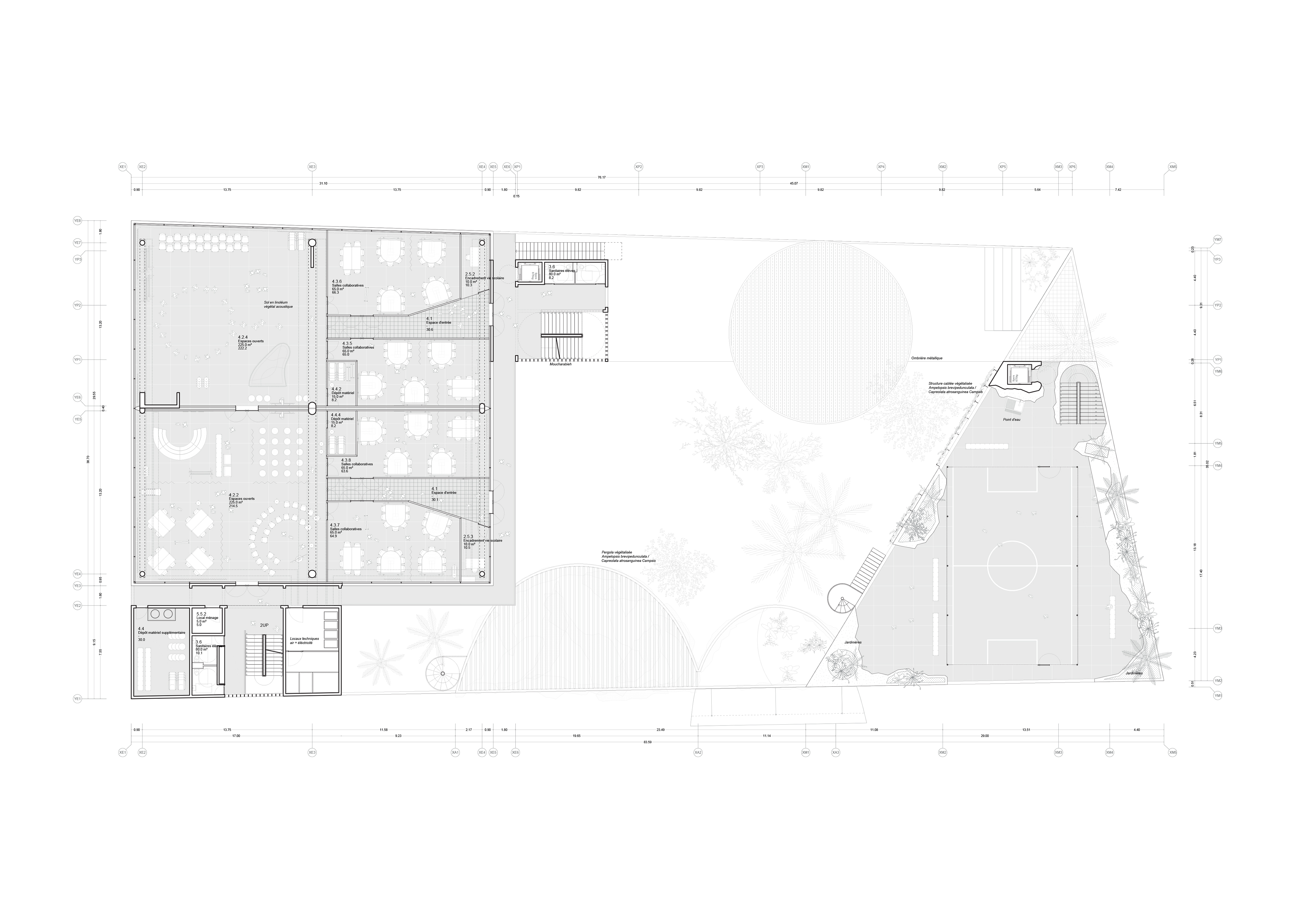
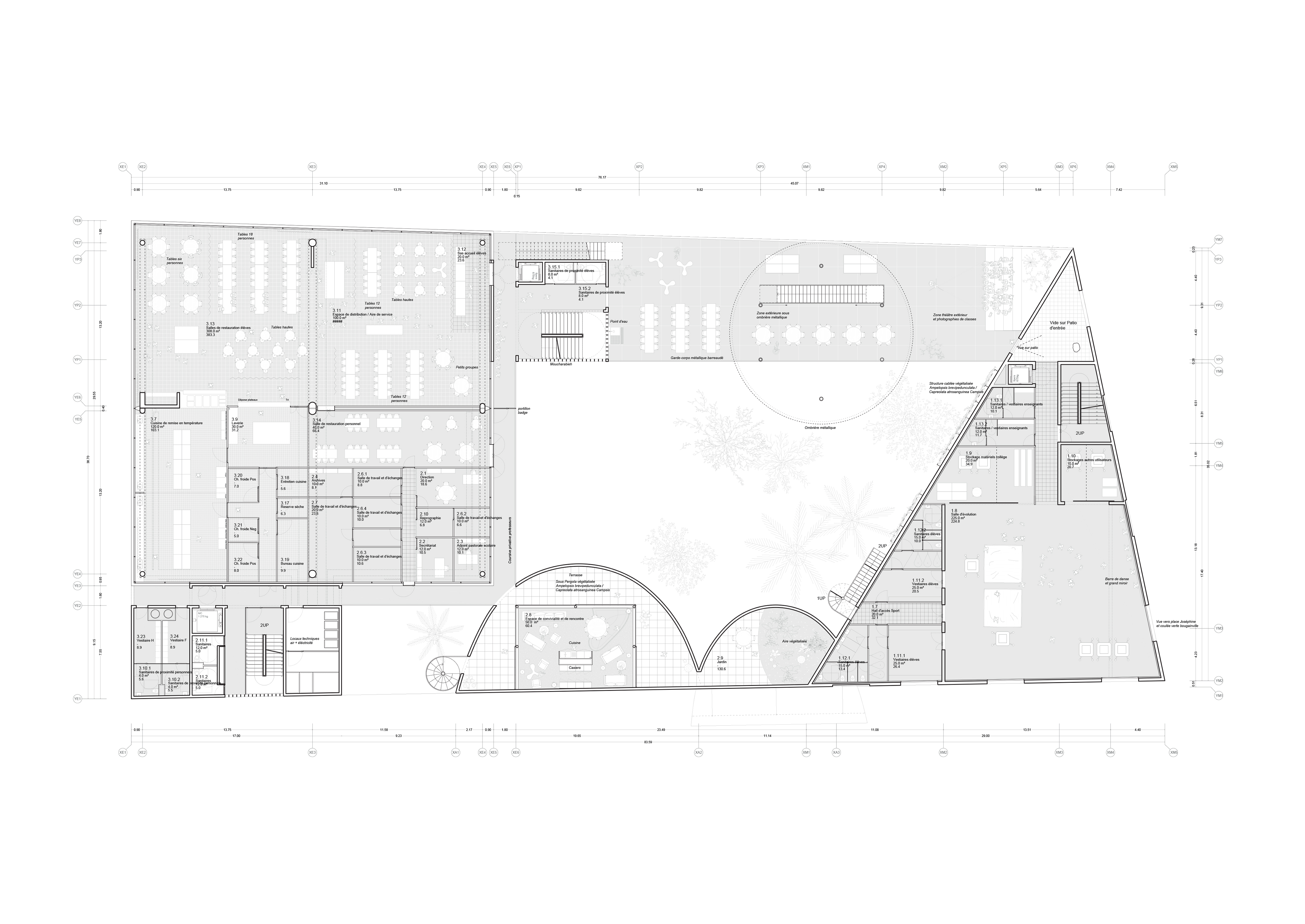
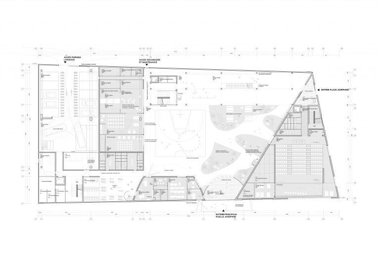
Collège

284
infos
infos
2019, Marseille infos
Année 2019
Lieu Marseille
Maîtrise d’ouvrage Compagnie de Jésus
Mandataire NP2F
Avec GCC (entreprise)
Programme Construction d'un collège
Superficie 4 911 m²
Coût 11 767 000
Mission Complète
Statut Concours