NP2F
projet précédent
388
projet suivant
  • architectes
  • index
  • news
  • à propos
  • contact
open
close

1

2

3

4

5

6

7

8

9

10

11

12

13

14

15

16

388_PM_250625_TERRASSE

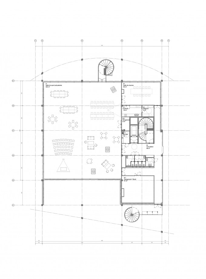
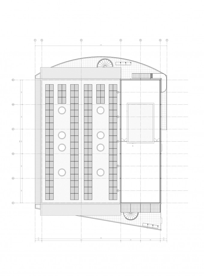
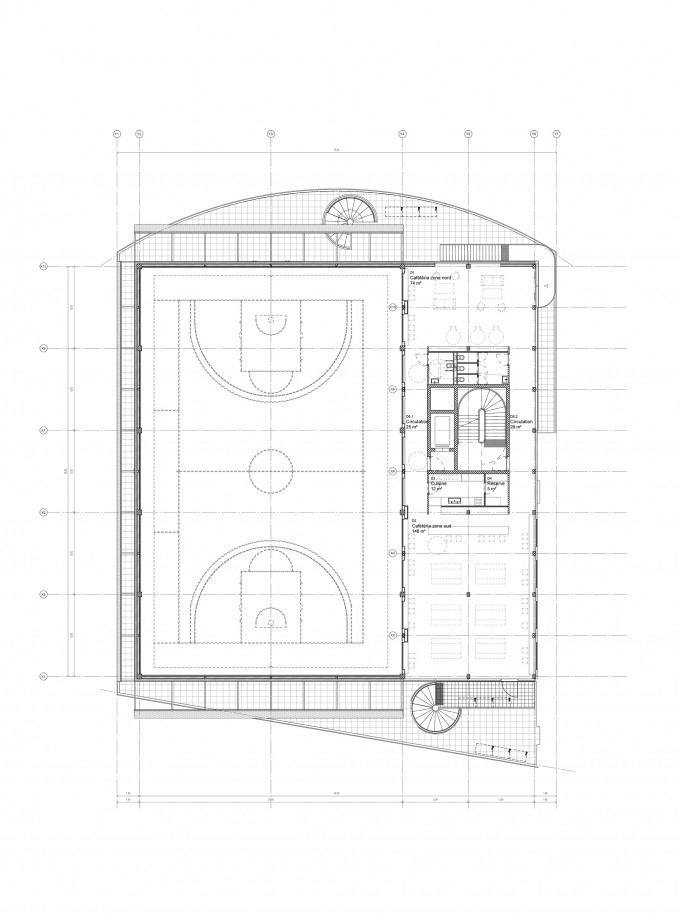
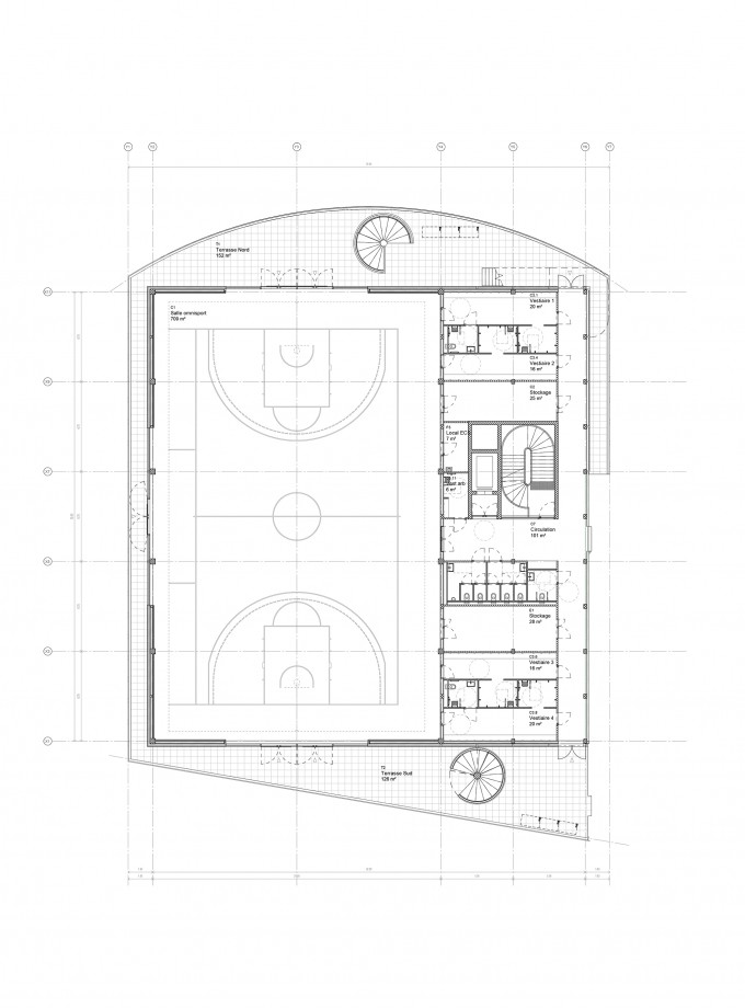
Centre sportif Victoria

388
infos
infos
2024, Koekelberg (BE) infos
Année 2024
Lieu Koekelberg (BE)
Maîtrise d’ouvrage Beliris
Mandataire CENTRAL+NP2F
Programme Extension d'un centre sportif
Superficie 2 400 m²
Coût 7 000 000
Mission Complète
Statut APS