NP2F
projet précédent
368
projet suivant
  • architectes
  • index
  • news
  • à propos
  • contact
open
close

1

2

3

4

5

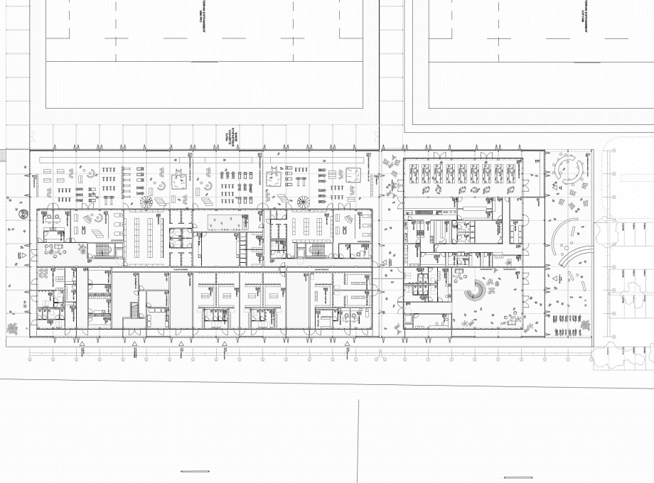
Centre sportif Montauban

368
infos
infos
2022, Montauban infos
Année 2022
Lieu Montauban
Maîtrise d’ouvrage Ville de Montauban
Mandataire GL Event
Associé BAST
Avec OTCE, Demathieu Bard, Natural Grass, LD2G, VPEAS
Programme Centre d’excellence sportive
Superficie 6 100 m²
Mission Complète
Statut Concours