NP2F
projet précédent
320
  • architectes
  • index
  • news
  • à propos
  • contact
open
close

1

2

3

4

5

6

7

8

9

10

11

12

13

14

15

16

17

18

19

20

21

22

23

24

25

26

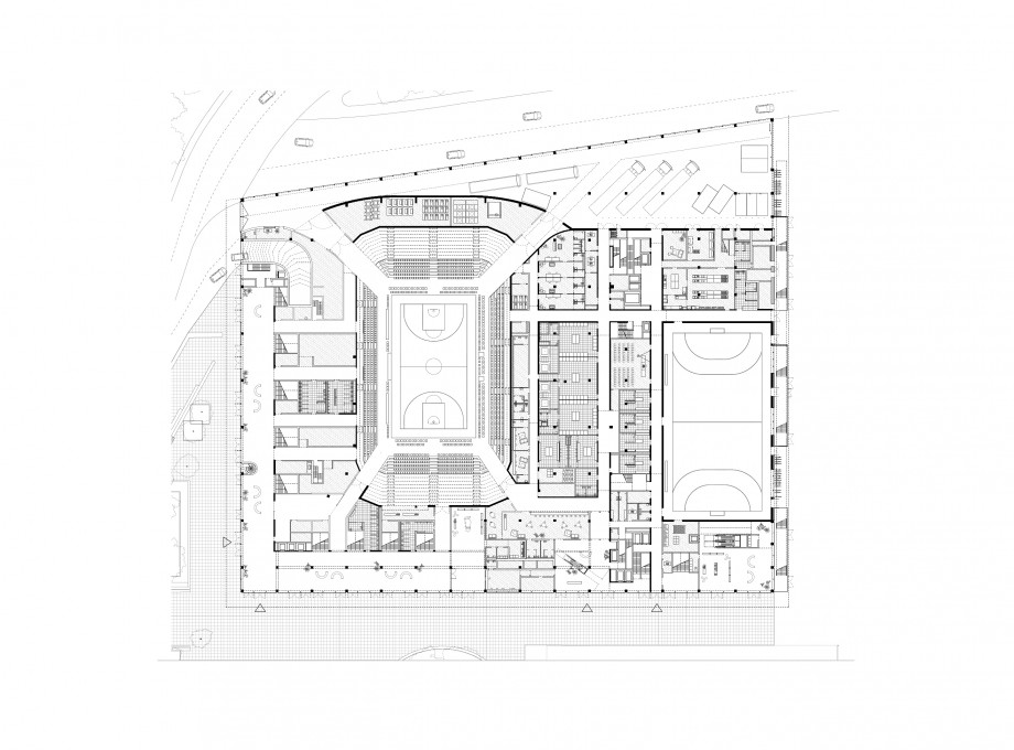
ADIDAS Arena

320
infos
infos
2020, Porte de la Chapelle, Paris, 18e arrondissement infos
Année 2020
Lieu Porte de la Chapelle, Paris, 18e arrondissement
Maîtrise d’ouvrage Ville de Paris
Mandataire Bouygues Bâtiment Ile-de-France
Associé SCAU
Programme Construction de l'Arena Porte de la Chapelle dans le cadre des Jeux Olympiques de Paris 2024
Superficie 26 000 m²
Coût 125 000 000
Mission Complète
Statut livré en 2023
Photographe @Jeroen Verrecht, @Antoine Espinasseau